Проекты домов Оформить
ипотеку
Стройматериалы Участки Строительство
Выберите свой регион строительства
Крымский федеральный округ
Крым
Close mobile menu

Характеристики дома:

Площадь дома

115 m2

Кол-во жилых комнат

4
Стоимость проекта АР+КР
39,500 ₽

Хотите изменить планировку?

Отправьте запрос архитектору и обсудите с ним ваши идеи по перепланировке.

О проекте

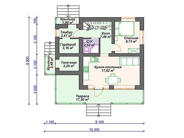
S4-115 (К-372) Дом прямоугольной формы, выполнен из газобетона, толщиной 300 мм, отделка наружных стен - облицовочный кирпич. Вход в дом осуществляется с маленького крылечка, а затем в тамбур почти 2.5 кв м. Прямо ведёт дверь в гардероб 3 кв м, по левую руку в холл. Проходим в холл и сразу с права санузел с душевым поддоном, а с лева лестница на второй этаж. На первом этаже расположена небольшая комната 8.7 кв м, которую можно использовать как кабинет или при необходимости как гостевую комнату. Кухня в доме совмещена с гостиной (17.8 кв м), что в данном случае очень удобно, нет лишних перегородок уменьшающих площадь. Со стороны кухни-гостиной расположена г-образная терраса, площадью 17.5 кв м. Второй этаж включает в себя три спальни. Две детские в пределах 9 кв м и одна родительская 17.8 кв м, из которой предусмотрен выход на балкон. В каждой из спален предусмотрен встроенный шкаф. Для удобства проживающих на этаже имеется маленький с/у с раковиной и душевым поддоном. Внутренне пространство дома распланировано очень рационально – на сравнительно небольшой площади есть все необходимое для комфортной жизни нескольких человек.

Аккредитованы в ведущих банках

Корзина
Ваша корзина пуста
Выберите в каталоге интересующий товар и нажмите кнопку "В корзину"
Отложенные товары
Отложенных товаров нет
Выберите в каталоге интересующий товар и нажмите кнопку "В избранное"
Заказать звонок