Проекты домов Оформить
ипотеку
Стройматериалы Участки Строительство
Выберите свой регион строительства
Крымский федеральный округ
Крым
Close mobile menu

Характеристики дома:

Площадь дома

127 m2

Кол-во жилых комнат

6+
Стоимость проекта АР+КР
44,000 ₽

Хотите изменить планировку?

Отправьте запрос архитектору и обсудите с ним ваши идеи по перепланировке.

О проекте

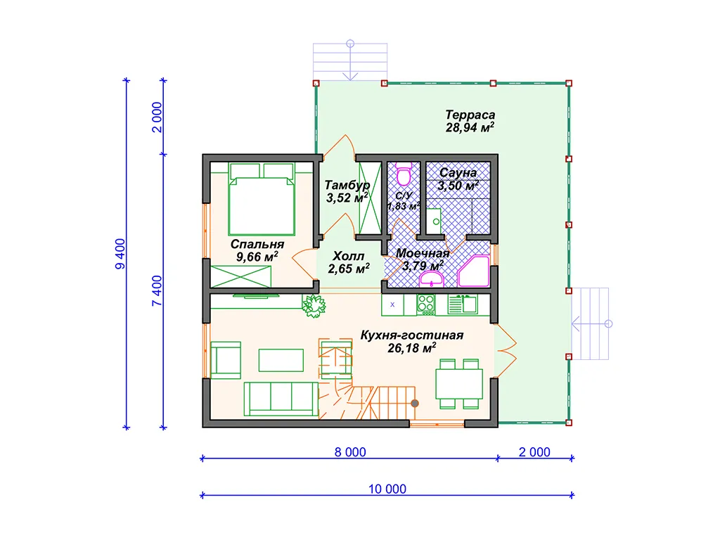
S4-127 (И-095)- дом общей площадью - 127 кв м. Габариты дома (без террасы) - 7.40х8.00 м. Дом почти квадратной формы, для постоянного проживания, выполнен из деревянного каркаса толщиной 150 мм. Отделка наружных стен - имитация бруса/блокхаус. Строительство здания осуществляется на винтовых сваях. Перекрытия 1 и 2 эт - деревянные лаги. Покрытие кровли - мягкая. Вход в дом осуществляется с г-образной террасы накрытой отдельной крышей от дома. Проходим в небольшой тамбур 3.5 кв м, в котором по левую руку расположен шкаф для верхней одежды. Из тамбура проходим в маленький холл 2.6 кв м из которого имеется доступ во все помещения этажа. Справа сразу при входе имеется помещение 9.6 кв м, заявлено как спальня, но при необходимости можно использовать как кабинет или гостевую комнату. По левую руку расположена "мокрая зона"- моечная, с/у и сауна. Пройдя через холл попадаем в гостиную. Гостиная совмещена с кухней 26 кв м, отсюда предусмотрен выход на просторную террасу почти 29 кв м. Это прекрасное место для отдыха всей семьи. Лестница в доме является центральной "фигурой" и стоит прямо в гостиной - не всегда стоит ее прятать, она будет отличным украшением Вашей гостиной. Поднимаясь по лестнице на 2-ой этаж, попадаем в холл 4.8 кв м, из которого можно пройти в любую из 4-х спален. Спальни небольшие, все одинаковые по площади 9.6 кв м. Так же на этаже имеется ванная комната с окном, площадью 3.4 кв м. Компактный , недорогой дом в строительстве, но позволяющий расположить для проживания семью из 4 человек.

Аккредитованы в ведущих банках

Корзина
Ваша корзина пуста
Выберите в каталоге интересующий товар и нажмите кнопку "В корзину"
Отложенные товары
Отложенных товаров нет
Выберите в каталоге интересующий товар и нажмите кнопку "В избранное"
Заказать звонок