Проекты домов Оформить
ипотеку
Стройматериалы Участки Строительство
Выберите свой регион строительства
Крымский федеральный округ
Крым
Close mobile menu

Характеристики дома:

Площадь дома

105,5 m2

Кол-во жилых комнат

5
Стоимость проекта АР+КР
52,000 ₽

Хотите изменить планировку?

Отправьте запрос архитектору и обсудите с ним ваши идеи по перепланировке.

О проекте

Проект S3-105 (Z451) представляет собой компактный и современный дом с мансардным этажом, идеально подходящий для небольшой семьи или загородного отдыха. Данный проект создан для людей, которые ценят функциональность, минимализм и современный стиль архитектуры.
Архитектурные особенности
Дом имеет четкие геометрические линии и оригинальное исполнение кровли без свесов, что придает ему современный и аккуратный вид. Фасад выполнен в сочетании натурального дерева и светлой штукатурки, создавая элегантный и теплый облик. Панорамные окна обеспечивают максимум естественного света и визуально увеличивают внутреннее пространство. У дома высокий угол наклона кровли, что делает дом более уникальным.

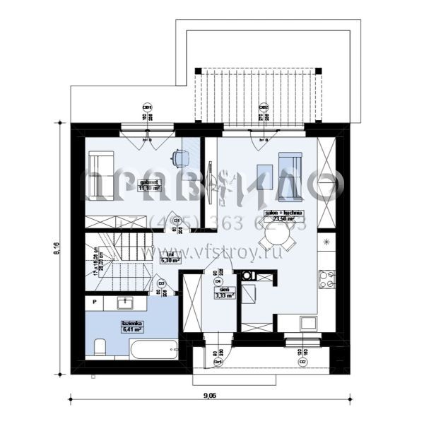
Планировка
Проект предусматривает два этажа:
Первый этаж включает просторную зону гостиной и кухни (23,50 м²), где можно комфортно расположиться с семьей или друзьями. Также здесь находится дополнительная комната (11,10 м²), которую можно использовать как кабинет или гостевую спальню. Небольшая ванная комната (6,41 м²) и прихожая с гардеробом обеспечивают функциональность и комфорт.
Второй мансардный этаж отведен под приватные помещения. Здесь расположены три спальни (14,59 м², 13,20 м² и 12,21 м²), идеально подходящие для отдыха. Ванная комната (7,56 м²) на втором этаже имеет достаточные размеры для установки всех необходимых удобств.

Преимущества проекта
Энергоэффективность – благодаря современной конструкции и качественным материалам дом хорошо удерживает тепло зимой и прохладу летом.
Функциональная планировка – каждый квадратный метр используется максимально эффективно, что делает дом уютным и просторным.
Современный дизайн – сочетание минимализма и природных материалов делает дом гармоничным в любом окружении: от лесного массива до городской застройки.

Дом идеально подойдет для небольшой семьи, молодой пары или людей, которые ищут современный загородный дом для отдыха. Компактные размеры и продуманный дизайн позволяют легко вписать его даже на небольшой участок.

Аккредитованы в ведущих банках

Корзина
Ваша корзина пуста
Выберите в каталоге интересующий товар и нажмите кнопку "В корзину"
Отложенные товары
Отложенных товаров нет
Выберите в каталоге интересующий товар и нажмите кнопку "В избранное"
Заказать звонок