info@vfstroy.ru
Москва, 1-й Кожевнический переулок, дом 6, строение 1, этаж 3
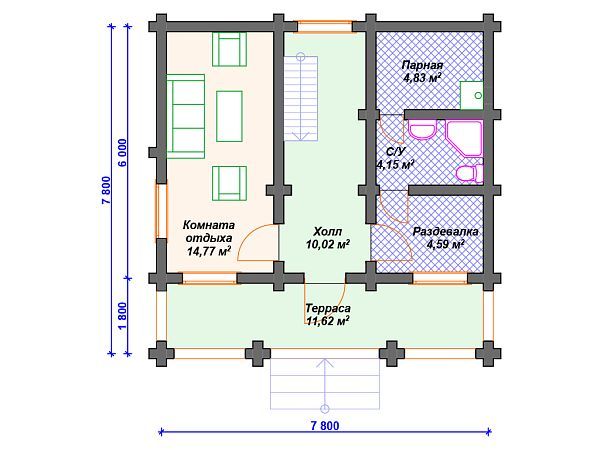
Проект деревянной бани SB4-44 (Б-016)
Характеристики дома:
Площадь дома
44 m2
Кол-во жилых комнат
3
Стоимость проекта АР+КР
32,000 ₽
О проекте
Характеристики проекта SB4-44 (Б-016)
| Классификация архитектора | Б-016 |
| Общая площадь | 44 м2 |
| Количество этажей | двухэтажный |
| Возможный материал кровли | металлочерепица, гибкая черепица, керамическая черепица, композитная черепица, цементно-песчаная черепица, фальцевая кровля |
| Количество жилых комнат | 3 |
| Тип перекрытий | по деревянным балкам |
| Материал стен | оцилиндрованное бревно, профилированный брус, клееный брус |