Проекты домов Оформить
ипотеку
Стройматериалы Участки Строительство
Выберите свой регион строительства
Крымский федеральный округ
Крым
Close mobile menu

Характеристики дома:

Площадь дома

191 m2

Кол-во жилых комнат

4
Стоимость проекта АР+КР
73,800 ₽

Хотите изменить планировку?

Отправьте запрос архитектору и обсудите с ним ваши идеи по перепланировке.

О проекте

S3-191-11(Zz3 p)- трехуровневый дом с компактной планировкой для семьи, где много человек, но имеется лишь маленький участок для застройки.
Простота конструкции коробки компенсируется сложной кровлей и контрастной расцветкой фасадов. Такой дом не оставит равнодушным ни одного застройщика.
• Подвал состоит из холла и двух помещений разной площади. Здесь можно запланировать домашний кинотеатр и компактную кладовую или сауну.
• Первый этаж состоит из прихожей, котельной, санузла и большой дневной зоны. В последнюю входит кухня линейного типа с кладовой, столовая и гостиная с уютным камином. Здесь есть большое панорамное окно и выход на уличную террасу.
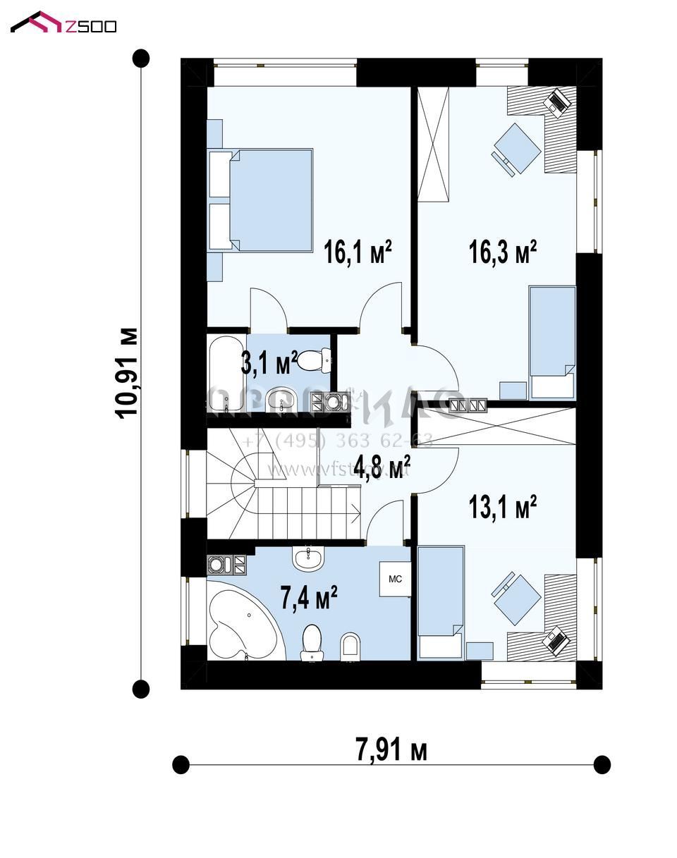
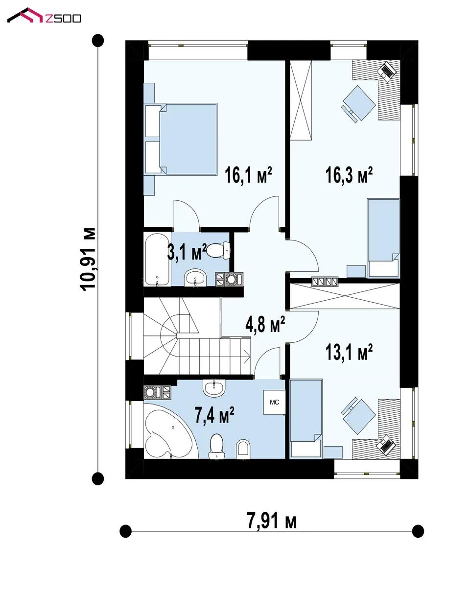
• Второй этаж разбит на большую ванную, хозяйскую спальню с индивидуальным санузлом и две просторные комнаты.
В проекте есть все, что нужно для ведения хозяйства семьи, которая ценит уютную обстановку и современные виды отделки в экстерьере.

Аккредитованы в ведущих банках

Корзина
Ваша корзина пуста
Выберите в каталоге интересующий товар и нажмите кнопку "В корзину"
Отложенные товары
Отложенных товаров нет
Выберите в каталоге интересующий товар и нажмите кнопку "В избранное"
Заказать звонок