Проекты домов Оформить
ипотеку
Стройматериалы Участки Строительство
Выберите свой регион строительства
Крымский федеральный округ
Крым
Close mobile menu

Характеристики дома:

Площадь дома

170 m2

Кол-во жилых комнат

5
Стоимость проекта АР+КР
58,100 ₽

Хотите изменить планировку?

Отправьте запрос архитектору и обсудите с ним ваши идеи по перепланировке.

О проекте

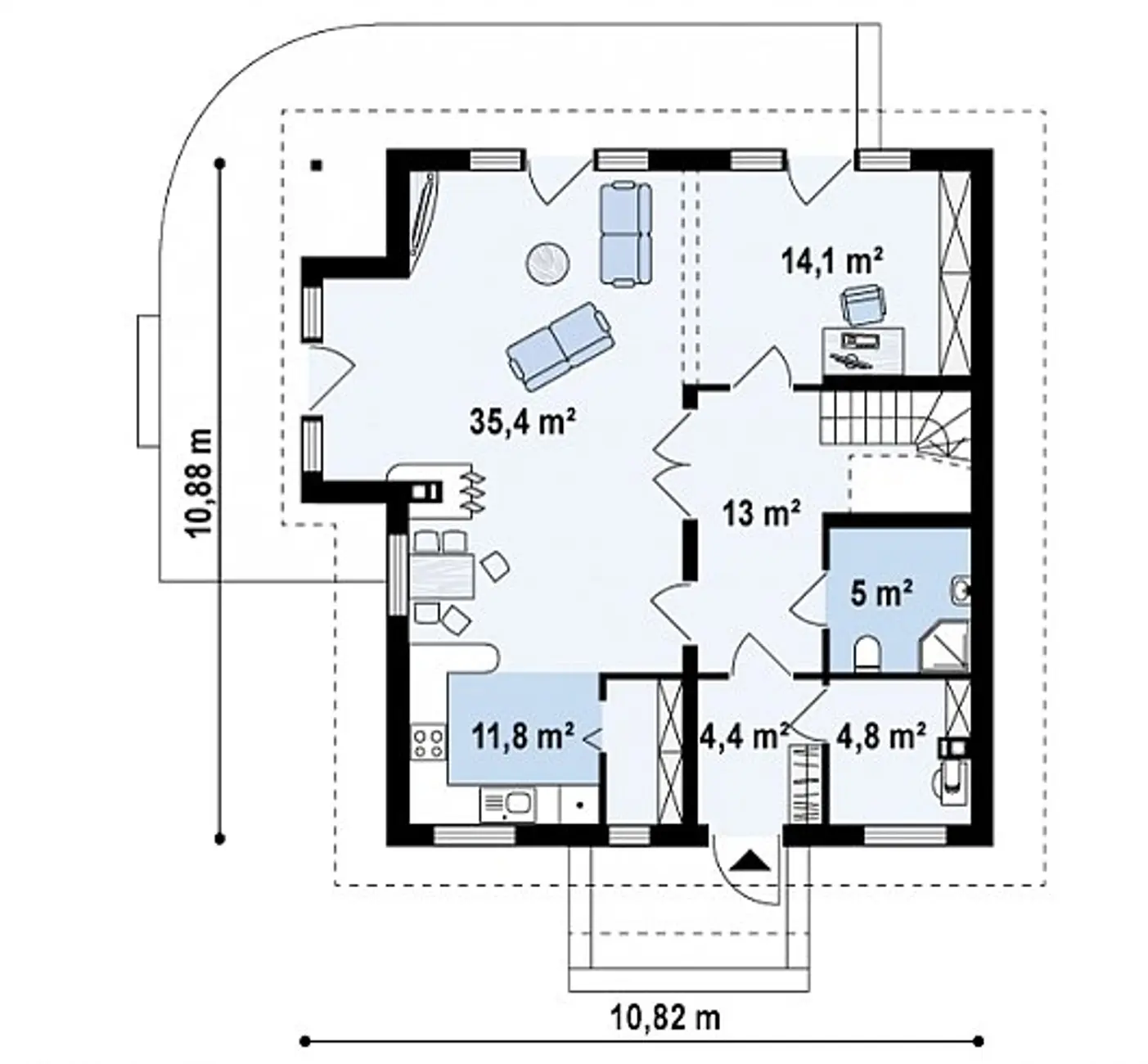
S3-170 (Z63) - Это большой дом с мансардой, в котором архитекторы предлагают несколько гибких проектировочных решений. В стандартном варианте постройка может иметь три спальни и очень большую гостиную. Но по желанию часть общего помещения на первом этаже можно отделить, превратив ее в кабинет или еще одну жилую комнату. 
Внешне постройка выполнена в классическом стиле. Традиционная прямоугольная форма дополнена скатной крышей. Приятными деталями будут большие окна с дверями, ведущими на задний двор. А также эркер, который наполняет гостиную светом. Изюминка — камин с живым огнем, рядом с которым можно расположить обеденный стол. 
Кухонная зона открыта. Наличие еще одной двери из коридора позволяет также изолировать ее от гостиной. Рядом есть вход в кладовую, предназначенную для хранения припасов. Оставшееся место отведено под ванную комнату и котельную. 
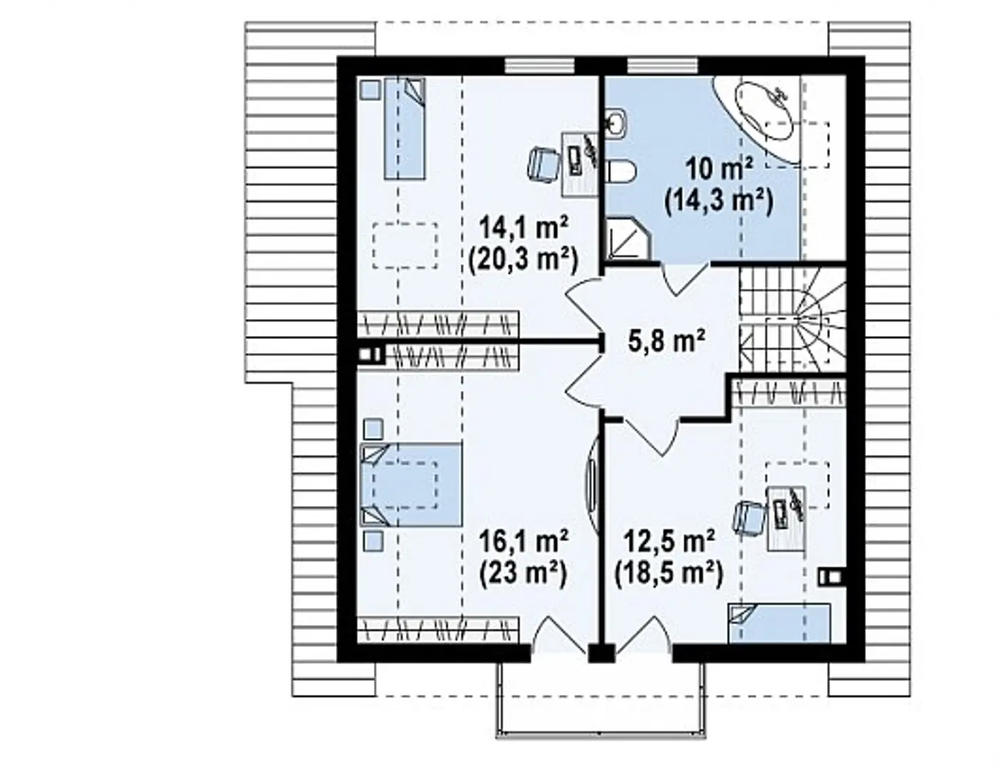
Второй этаж занимают три спальни. Для всех жителей дома предусмотрена одна ванная комната. За счет окон, прорезанных в крыше, все они ярко освещаются дневным светом. 

Аккредитованы в ведущих банках

Корзина
Ваша корзина пуста
Выберите в каталоге интересующий товар и нажмите кнопку "В корзину"
Отложенные товары
Отложенных товаров нет
Выберите в каталоге интересующий товар и нажмите кнопку "В избранное"
Заказать звонок