Проекты домов Оформить
ипотеку
Стройматериалы Участки Строительство
Выберите свой регион строительства
Крымский федеральный округ
Крым
Close mobile menu

Характеристики дома:

Площадь дома

165 m2

Кол-во жилых комнат

4
Стоимость проекта АР+КР
58,100 ₽

Хотите изменить планировку?

Отправьте запрос архитектору и обсудите с ним ваши идеи по перепланировке.

О проекте

s3-165-2 (Z364) Если вы любите отдыхать на природе, самое время построить этот дом в качестве загородной резиденции. Он создан для комфортного отдыха на природе и приема большого количества гостей. Об этом говорит гостиная площадью больше 30 кв. метров, в которой предусмотрено место под обеденный стол. 

Для готовки званых ужинов можно использовать большую кухню. Она находится в смежном помещении. Такой подход позволяет удобно сервировать банкеты, но при этом не доставлять дискомфорта гостям дымом и запахом. 
Коттедж привлекает также наличием гаража с дверью в дом, а также опоясывающей веранды в задней части. 

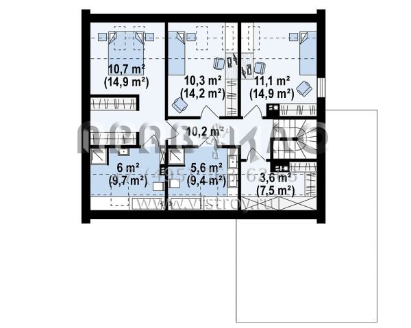
На мансарде располагаются три спальни. Главная комната находится в конце коридора и предоставляет максимальный комфорт владельцам. В ней есть огромный изолированный санузел и не меньший гардероб. 

Дизайнеры предлагают использовать для отделки фасадов минеральные материалы, которые придают коттеджу стильный и современный внешний вид. 

Аккредитованы в ведущих банках

Корзина
Ваша корзина пуста
Выберите в каталоге интересующий товар и нажмите кнопку "В корзину"
Отложенные товары
Отложенных товаров нет
Выберите в каталоге интересующий товар и нажмите кнопку "В избранное"
Заказать звонок