Проекты домов Оформить
ипотеку
Стройматериалы Участки Строительство
Выберите свой регион строительства
Крымский федеральный округ
Крым
Close mobile menu

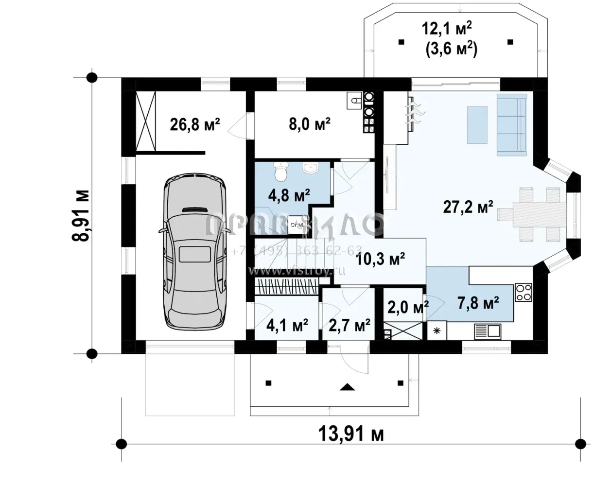
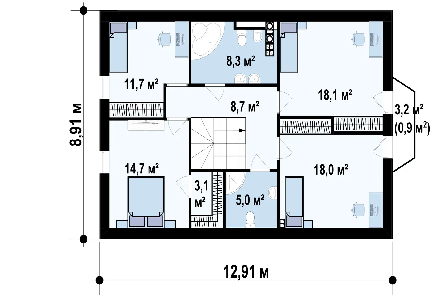
Характеристики дома:

Площадь дома

178 m2

Кол-во жилых комнат

5
Стоимость проекта АР+КР
58,100 ₽

Хотите изменить планировку?

Отправьте запрос архитектору и обсудите с ним ваши идеи по перепланировке.

О проекте

S3-178 (Z178) Этот небольшой двухэтажный дом привлекает тем, что все спальни в нем расположены на мансарде. Если использовать его для постоянного проживания, то шум внизу не будет мешать качественному отдыху наверху.
Преимуществом этого проекта является компактность постройки и относительно невысокие затраты на строительство. Причем внутри поместился даже гараж с кладовой и выходом в дом, поэтому думать о защите автомобиля от непогоды не придется.
Гостиная с камином в коттедже объединена с обеденной зоной. Стол можно расположить в эркере. Благодаря открытой планировке помещение не кажется тесным, несмотря на ограниченную площадь. Для дополнительного удобства внизу предусмотрен отдельный санузел.
Второй этаж вмещает четыре спальни и две ванные. Причем в одной из комнат осталось место для гардеробной. А небольшой балкон станет еще одним приятным сюрпризом.

Аккредитованы в ведущих банках

Корзина
Ваша корзина пуста
Выберите в каталоге интересующий товар и нажмите кнопку "В корзину"
Отложенные товары
Отложенных товаров нет
Выберите в каталоге интересующий товар и нажмите кнопку "В избранное"
Заказать звонок