Проекты домов Оформить
ипотеку
Стройматериалы Участки Строительство
Выберите свой регион строительства
Крымский федеральный округ
Крым
Close mobile menu

Характеристики дома:

Площадь дома

143 m2

Кол-во жилых комнат

4
Стоимость проекта АР+КР
96,800 ₽

Хотите изменить планировку?

Отправьте запрос архитектору и обсудите с ним ваши идеи по перепланировке.

О проекте

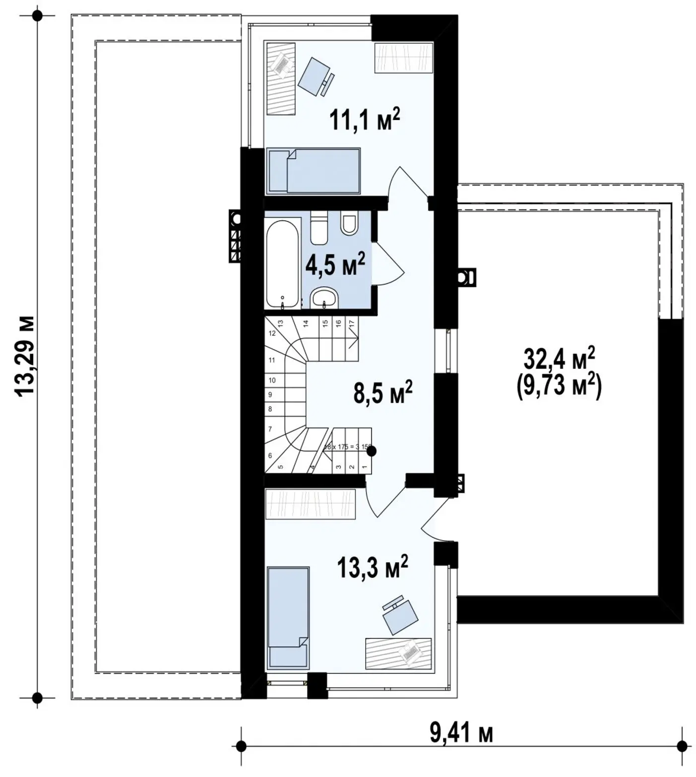
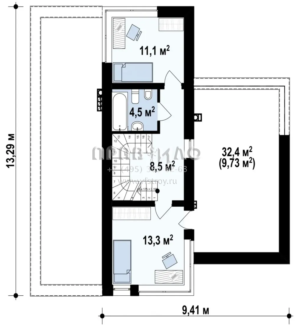
S3-143-4 (Zx46 minus) - Этот проект привлекает и интересными интерьерными решениями, и необычным внешним видом самого коттеджа. Его можно порекомендовать тем, кто хочет разделить детскую и взрослую зоны дома. На втором уровне размещены две небольшие жилые комнаты, а главная спальня со своим гардеробом и ванной — внизу. 

На первом этаже дома расположилась просторная гостиная. Двустворчатые двери в панорамном остеклении позволяют выйти на веранду и впустить вечернюю прохладу в помещение. Такое же архитектурное решение реализовано и в главной спальне. 

В этом коттедже кухня полностью открыта, объединена с гостиной и столовой. Грамотное расположение мебели позволяет выделить зону для завтраков и посиделок за барной стойкой рядом с панорамным окном. Для гостей предусмотрен отдельный небольшой санузел. 

Отдельного упоминания стоит гараж. Из него есть вход в дом через гардеробную комнату и проход в котельную-склад. 

Аккредитованы в ведущих банках

Корзина
Ваша корзина пуста
Выберите в каталоге интересующий товар и нажмите кнопку "В корзину"
Отложенные товары
Отложенных товаров нет
Выберите в каталоге интересующий товар и нажмите кнопку "В избранное"
Заказать звонок