Проекты домов Оформить
ипотеку
Стройматериалы Участки Строительство
Выберите свой регион строительства
Крымский федеральный округ
Крым
Close mobile menu

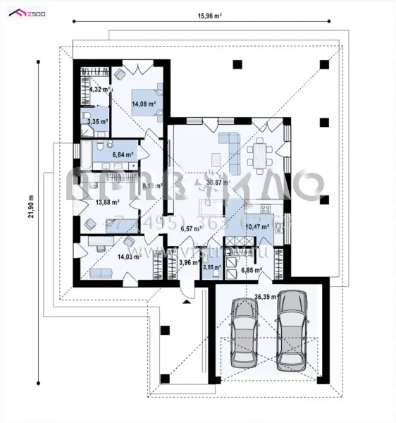
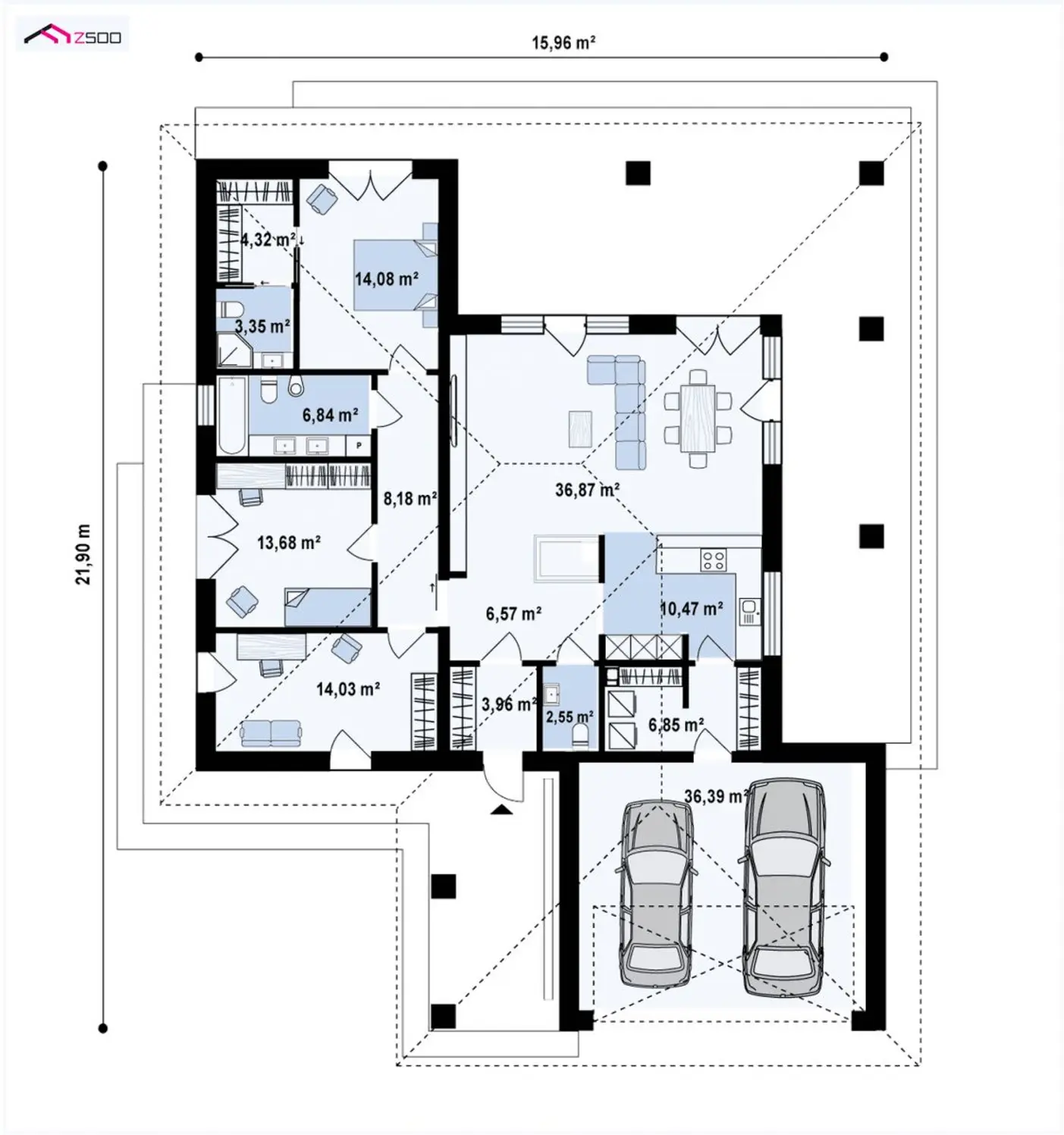
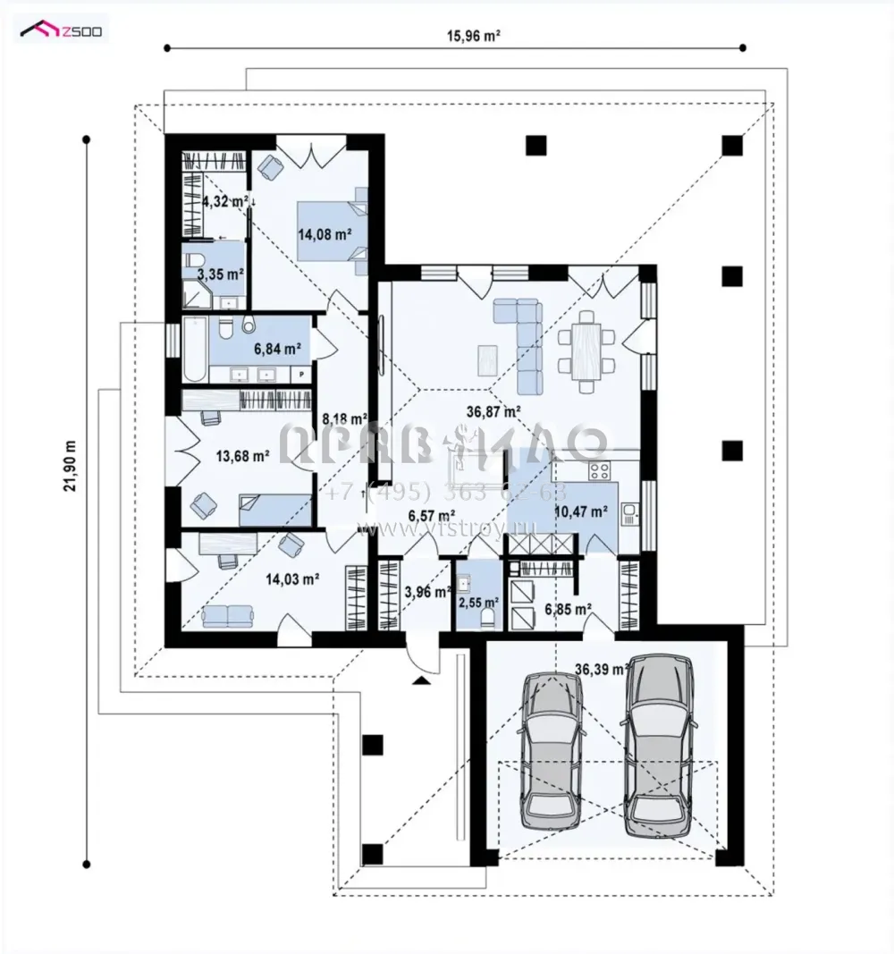
Характеристики дома:

Площадь дома

168 m2

Кол-во жилых комнат

4
Стоимость проекта АР+КР
58,100 ₽

Хотите изменить планировку?

Отправьте запрос архитектору и обсудите с ним ваши идеи по перепланировке.

О проекте

S3-168-6(Z409) - Солидный и элегантный экстерьер этого дома сочетается с удобной планировкой. Такой одноэтажный дом идеально подойдет для проживания семьи из 3-4 человек.
Дневная зона дома представлена крайне просторной гостиной, совмещенной в одном пространстве с кухней и столовой. При этом у кухни есть небольшое помещение кладовой, через которое можно попасть в гараж на два автомобиля. Из гостиной спроектирован выход на террасу, на которой можно провести время в теплый сезон. Удобство использования гостиной выражается еще и в том, что проектом там предусмотрен санузел.
Ночная зона дома – это три комнаты и две ванные комнаты. Одна из ванных комнат расположена в родительской спальне вместе с гардеробом. Одна из комнат спроектирована как кабинет для тех, кто предпочитает работать из дома. Но эту комнату можно переоборудовать в дополнительную гостиную. Из каждой комнаты организован выход на террасу.

3D Модель

Аккредитованы в ведущих банках

Корзина
Ваша корзина пуста
Выберите в каталоге интересующий товар и нажмите кнопку "В корзину"
Отложенные товары
Отложенных товаров нет
Выберите в каталоге интересующий товар и нажмите кнопку "В избранное"
Заказать звонок