Проекты домов Оформить
ипотеку
Стройматериалы Участки Строительство
Выберите свой регион строительства
Крымский федеральный округ
Крым
Close mobile menu

Характеристики дома:

Площадь дома

193 m2

Кол-во жилых комнат

4
Стоимость проекта АР+КР
88,300 ₽

Хотите изменить планировку?

Отправьте запрос архитектору и обсудите с ним ваши идеи по перепланировке.

О проекте

Проект S3-193 (Zx204 B30) – это архитектурное решение для тех, кто ценит современный стиль, функциональность и комфорт. Этот двухэтажный дом с плоской крышей сочетает в себе строгие геометрические линии, панорамные окна и минималистичный дизайн. Благодаря продуманной планировке, он идеально подходит для семей, которые хотят жить в просторном и светлом доме с удобными зонами для отдыха и работы.

Экстерьер: элегантность в каждой детали

Фасад дома выполнен в сдержанных оттенках белого, серого и черного, что подчеркивает его современный характер. Акцентные деревянные элементы придают зданию тепло и уют. Большие окна не только делают интерьер светлее, но и позволяют наслаждаться прекрасными видами на окружающий ландшафт.

Сзади дома расположена просторная терраса – идеальное место для отдыха, семейных встреч и барбекю. Продуманное освещение и современная отделка создают атмосферу уюта и уединения.

Функциональная планировка: удобство на каждом шагу

Общая площадь дома позволяет создать комфортное пространство для жизни и отдыха. Дом разделен на две функциональные зоны: дневную и ночную.

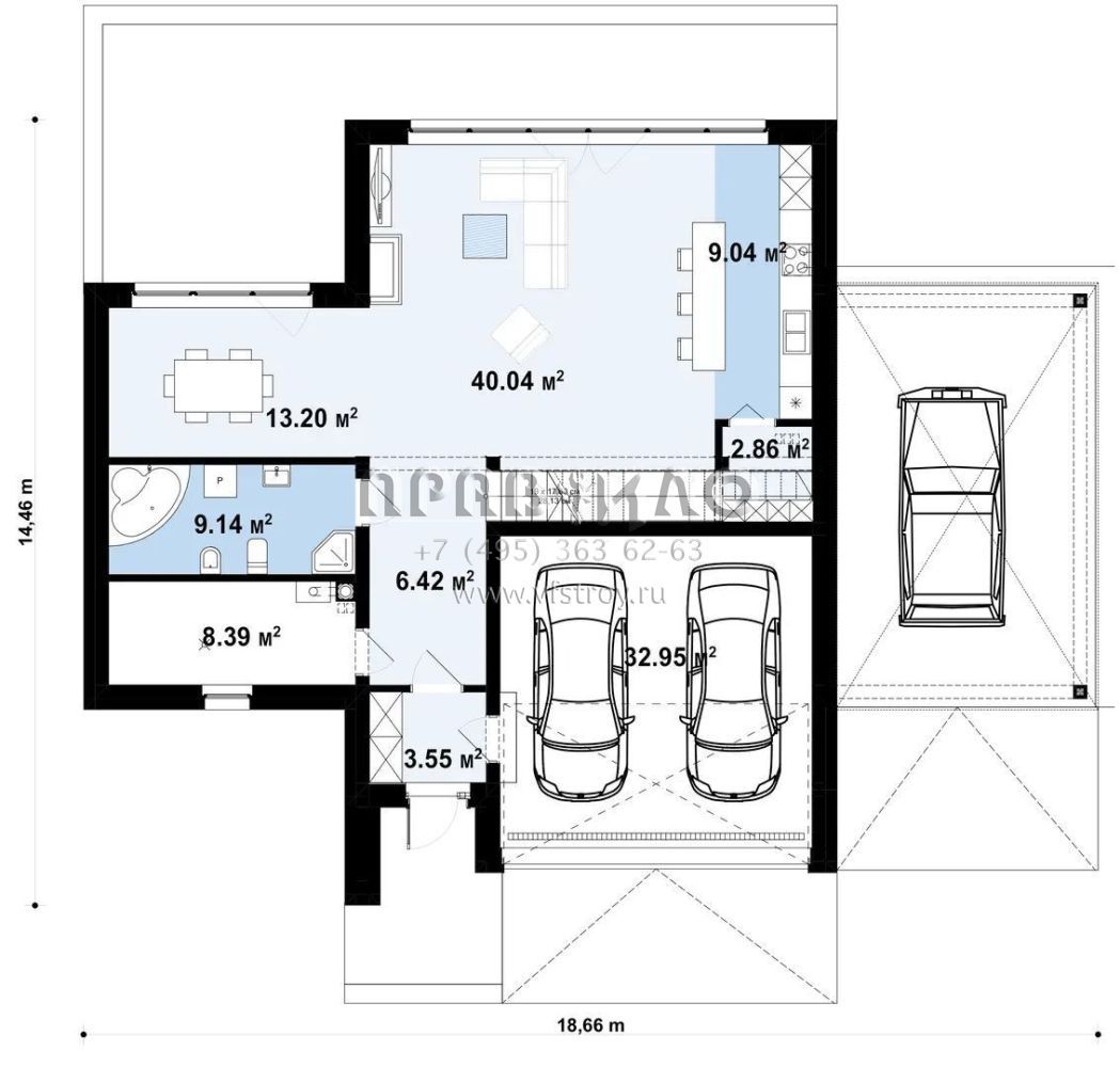
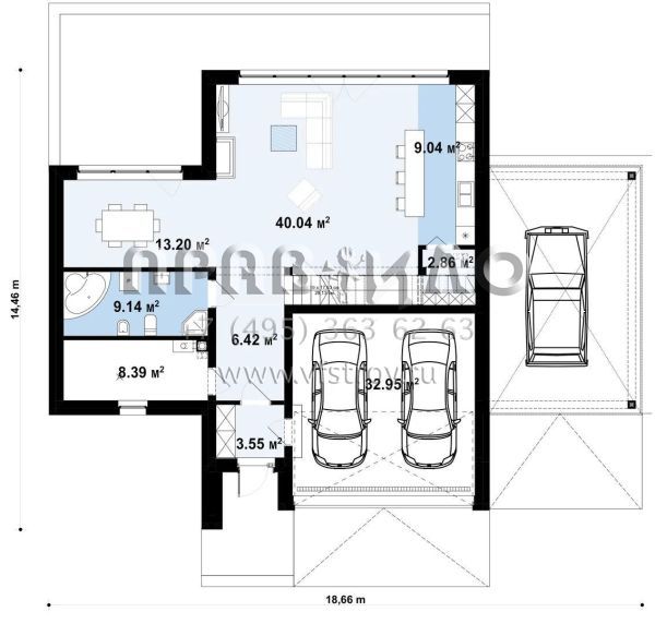
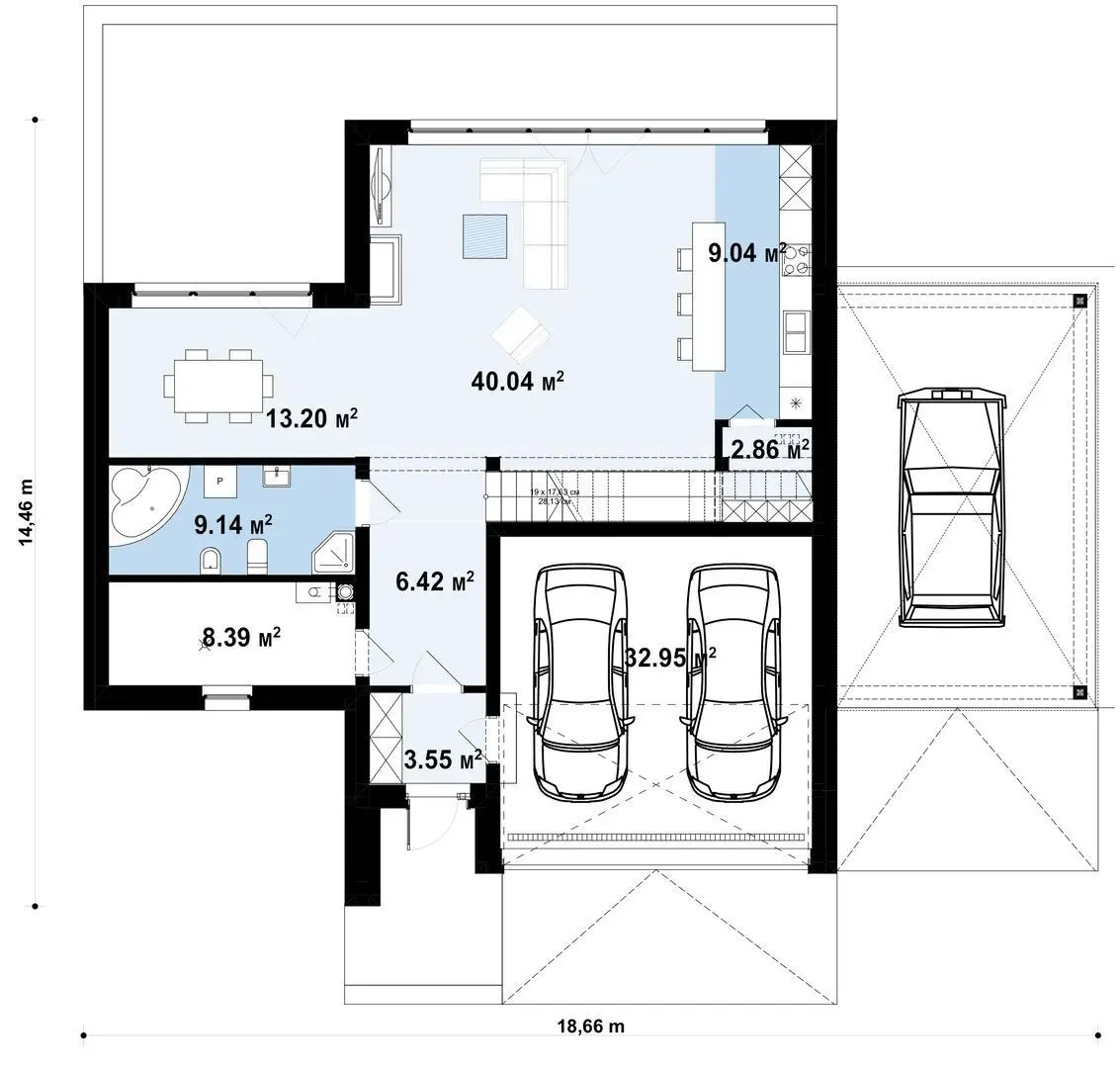
Первый этаж: простор и свет

  • Гостиная (40,04 м²) – просторное и светлое помещение, объединенное с обеденной зоной. Благодаря панорамным окнам она наполняется естественным светом и выходит на террасу с бассейном.
  • Кухня, объединенная с гостиной (9,04 м²) включает в себя удобные зоны хранения и рабочую поверхность.
  • Обеденная зона (13,20 м²) – комфортное место для семейных ужинов и встреч с гостями.
  • Санузел (9,14 м²) и котельная (8,39 м²) добавляют удобства в повседневную жизнь.
  • Гараж на два автомобиля (32,95 м²) – просторное помещение для хранения автомобилей и другого инвентаря.

Второй этаж: уединение и комфорт

  • Главная спальня (18,89 м²) с собственной гардеробной и выходом на балкон.
  • Две дополнительные спальни (17,10 м² и 11,20 м²) – уютные комнаты, которые можно использовать как детские или гостевые.
  • Ванная комната (8,63 м²), удобно расположенная рядом со спальнями.

Преимущества проекта S3-193 (Zx204 B30):

✔ Современный дизайн – стильный фасад с комбинацией контрастных оттенков и натуральных материалов.
✔ Энергоэффективность – использование качественных материалов и возможность установки солнечных панелей.
✔ Открытое пространство – просторная гостиная с выходом на террасу и бассейн.
✔ Панорамное остекление – большое количество света и ощущение единения с природой.
✔ Продуманная планировка – удобное разделение зон для комфортного проживания всей семьи.
✔ Гараж на два автомобиля – удобство для владельцев нескольких машин.

Проект S3-193 (Zx204 B30) – это идеальное сочетание эстетики и функциональности. Он подойдет как для молодых пар, так и для семей с детьми, создавая пространство, в котором приятно жить и отдыхать.

Аккредитованы в ведущих банках

Корзина
Ваша корзина пуста
Выберите в каталоге интересующий товар и нажмите кнопку "В корзину"
Отложенные товары
Отложенных товаров нет
Выберите в каталоге интересующий товар и нажмите кнопку "В избранное"
Заказать звонок