Проекты домов Оформить
ипотеку
Стройматериалы Участки Строительство
Выберите свой регион строительства
Крымский федеральный округ
Крым
Close mobile menu

Характеристики дома:

Площадь дома

139 m2

Кол-во жилых комнат

5
Стоимость проекта АР+КР
52,000 ₽

Хотите изменить планировку?

Отправьте запрос архитектору и обсудите с ним ваши идеи по перепланировке.

О проекте

S3-139-6 (Z210 GLt) - Этот аккуратный дом станет уютным гнездышком для дружной семьи, которая хочет переехать из шумного мегаполиса в пригород. Оптимально подобранные размеры и этажность позволяют построить его с небольшими затратами. Но при этом членам семьи не придется жертвовать комфортном. Здесь нашлось место даже для гаража с выходом в жилые помещения. 
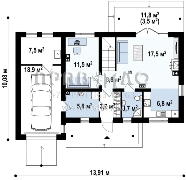
Одно крыло постройки занимает гостиная, объединенная с кухней. В одной стене сделано большое окно, через которое можно попасть на улицу. А рядом — настоящий камин. 
За счет формы комнаты зона для приготовления пищи частично скрыта. Рядом находится санузел, которым можно пользоваться в дневное время. В противоположном крыле расположилась жилая комната и прачечная.
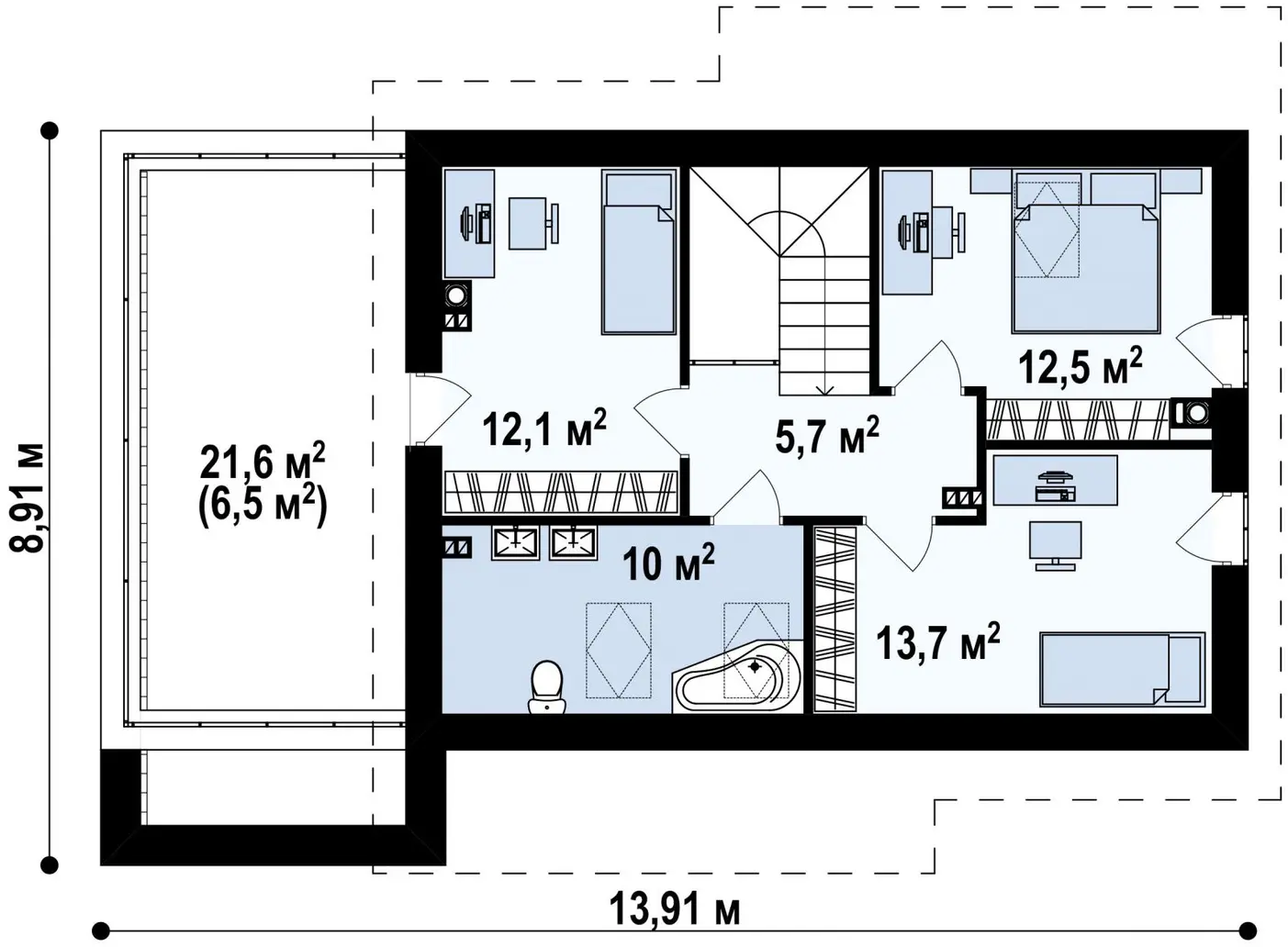
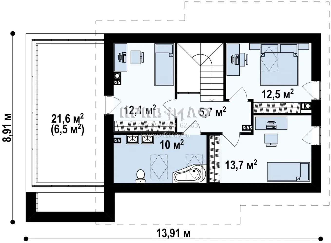
На втором уровне расположены спальни. Они примерно одинаковы по размеру и удобно объединены одним коридором у лестницы. На мансарде есть большая ванная комната, которая в дневное время будет хорошо освещена солнечными лучами из мансардных окон. 

Дизайн интерьера

Понравился этот дом?

Отправьте нам сообщение, и мы ответим на все интересующие вас вопросы.

Аккредитованы в ведущих банках

Корзина
Ваша корзина пуста
Выберите в каталоге интересующий товар и нажмите кнопку "В корзину"
Отложенные товары
Отложенных товаров нет
Выберите в каталоге интересующий товар и нажмите кнопку "В избранное"
Заказать звонок