Проекты домов Оформить
ипотеку
Стройматериалы Участки Строительство
Выберите свой регион строительства
Крымский федеральный округ
Крым
Close mobile menu

Характеристики дома:

Площадь дома

130 m2

Кол-во жилых комнат

4
Стоимость проекта АР+КР
52,000 ₽

Хотите изменить планировку?

Отправьте запрос архитектору и обсудите с ним ваши идеи по перепланировке.

О проекте

S3-130(Z62) - это один из самых компактных домов, спроектированных нашими архитекторами. Он пользуется популярностью у застройщиков благодаря удобной планировке и доступной стоимости строительства.

На первом этаже коттеджа нет спальных помещений. Все его пространство отведено под гостиную, совмещенную со столовой. Рядом находится кухня открытого типа. Для удобства проживающих и их гостей внизу располагается компактный санузел.

Благодаря открытой конструкции лестницы визуально объем помещений расширяется. Дополнительного уюта придает камин, находящийся рядом с обеденным столом. Для выхода на террасу предусмотрены большие стеклянные двери.
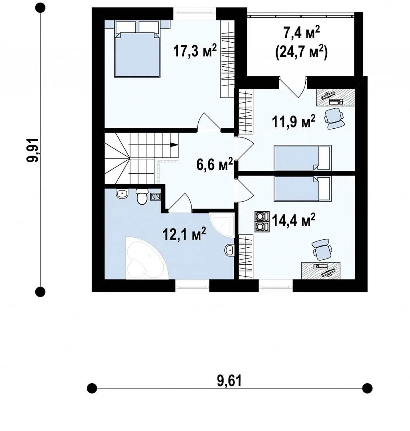
Мансардный этаж коттеджа занимают три спальни. Помимо них там есть ванная комната, которой могут пользоваться все жители дома. В ней поместится и джакузи, и душевая кабина. Одна из спален имеет балкон.

Аккредитованы в ведущих банках

Корзина
Ваша корзина пуста
Выберите в каталоге интересующий товар и нажмите кнопку "В корзину"
Отложенные товары
Отложенных товаров нет
Выберите в каталоге интересующий товар и нажмите кнопку "В избранное"
Заказать звонок