Проекты домов Оформить
ипотеку
Стройматериалы Участки Строительство
Выберите свой регион строительства
Крымский федеральный округ
Крым
Close mobile menu

Характеристики дома:

Площадь дома

112 m2

Кол-во жилых комнат

5
Стоимость проекта АР+КР
52,000 ₽

Хотите изменить планировку?

Отправьте запрос архитектору и обсудите с ним ваши идеи по перепланировке.

О проекте

S3-112-12 (Z210 v1) Это компактный домик, который станет дачной резиденцией или местом для жизни семьи. Он не может похвастать размерами. Но недостаток площади с лихвой окупается эргономичностью внутренней планировки. 

Первый этаж коттеджа занимает гостиная с большим окном с выходом на веранду. Простора этому помещению добавляет лестница открытого типа. В комнате можно поставить диваны, с которых будет хорошо виден огонь в камине. Рядом расположена кухня открытого типа и дверь в туалет. Помимо этого, на первом уровне есть большая котельная и одна спальня.
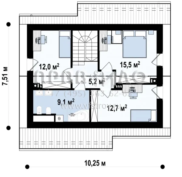
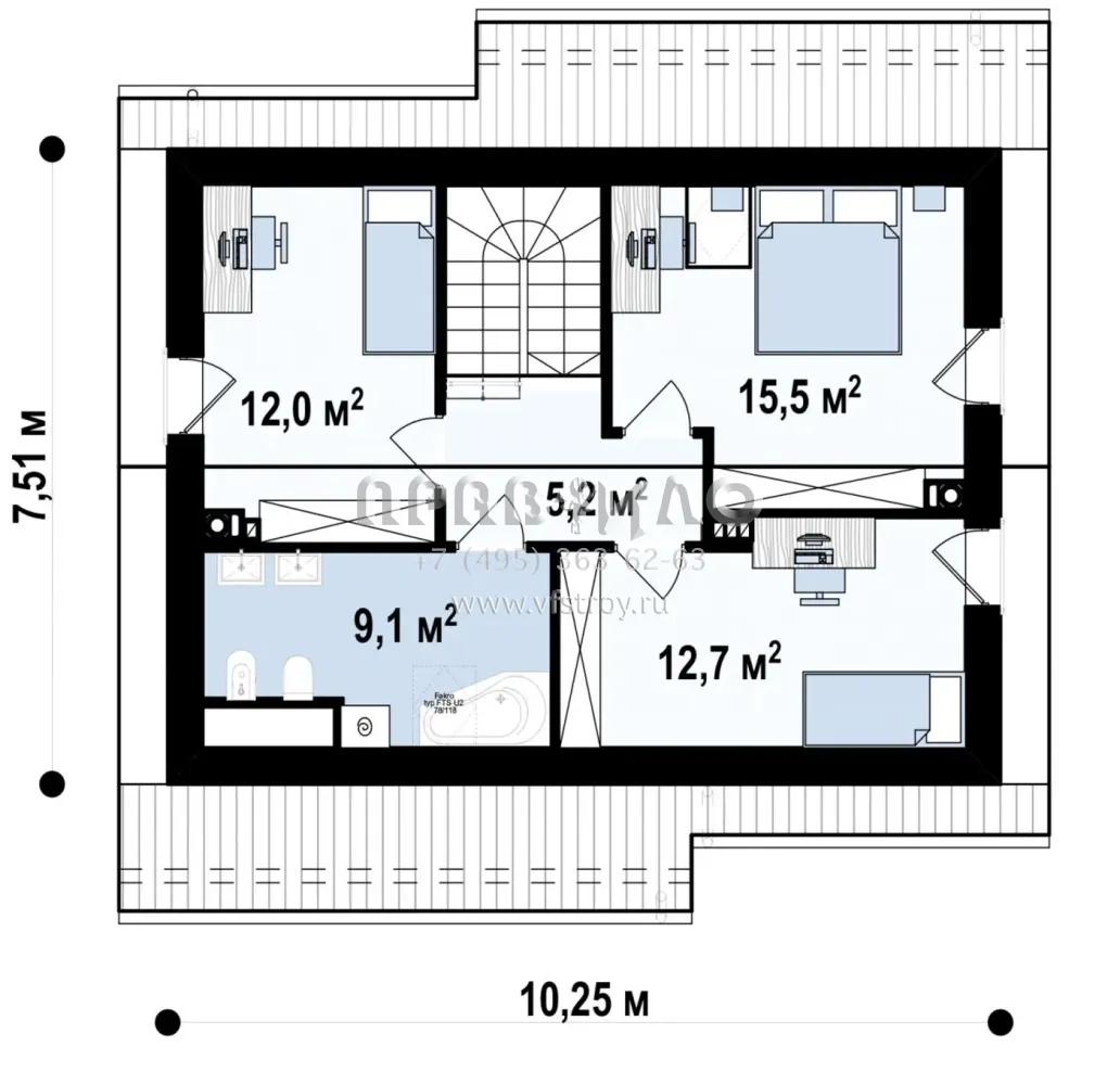
Три других помещения для сна располагаются на мансардном этаже. За счет скатов крыши некоторые стены в комнатах будут наклонными. Это не сказывается на качестве освещения, так как дневной свет будет проникать через мансардные окна. 

Санузел внизу дополняет комфортная ванная наверху. Она будет находиться в распоряжении всех жильцов дома. Дополнительный бонус — выходы на небольшие балкончики, которые есть в каждой из жилых комнат. 

Дизайн интерьера

Понравился этот дом?

Отправьте нам сообщение, и мы ответим на все интересующие вас вопросы.

Аккредитованы в ведущих банках

Корзина
Ваша корзина пуста
Выберите в каталоге интересующий товар и нажмите кнопку "В корзину"
Отложенные товары
Отложенных товаров нет
Выберите в каталоге интересующий товар и нажмите кнопку "В избранное"
Заказать звонок