Проекты домов Оформить
ипотеку
Стройматериалы Участки Строительство
Выберите свой регион строительства
Крымский федеральный округ
Крым
Close mobile menu

Характеристики дома:

Площадь дома

134 m2

Кол-во жилых комнат

4
Стоимость проекта АР+КР
58,100 ₽

Хотите изменить планировку?

Отправьте запрос архитектору и обсудите с ним ваши идеи по перепланировке.

О проекте

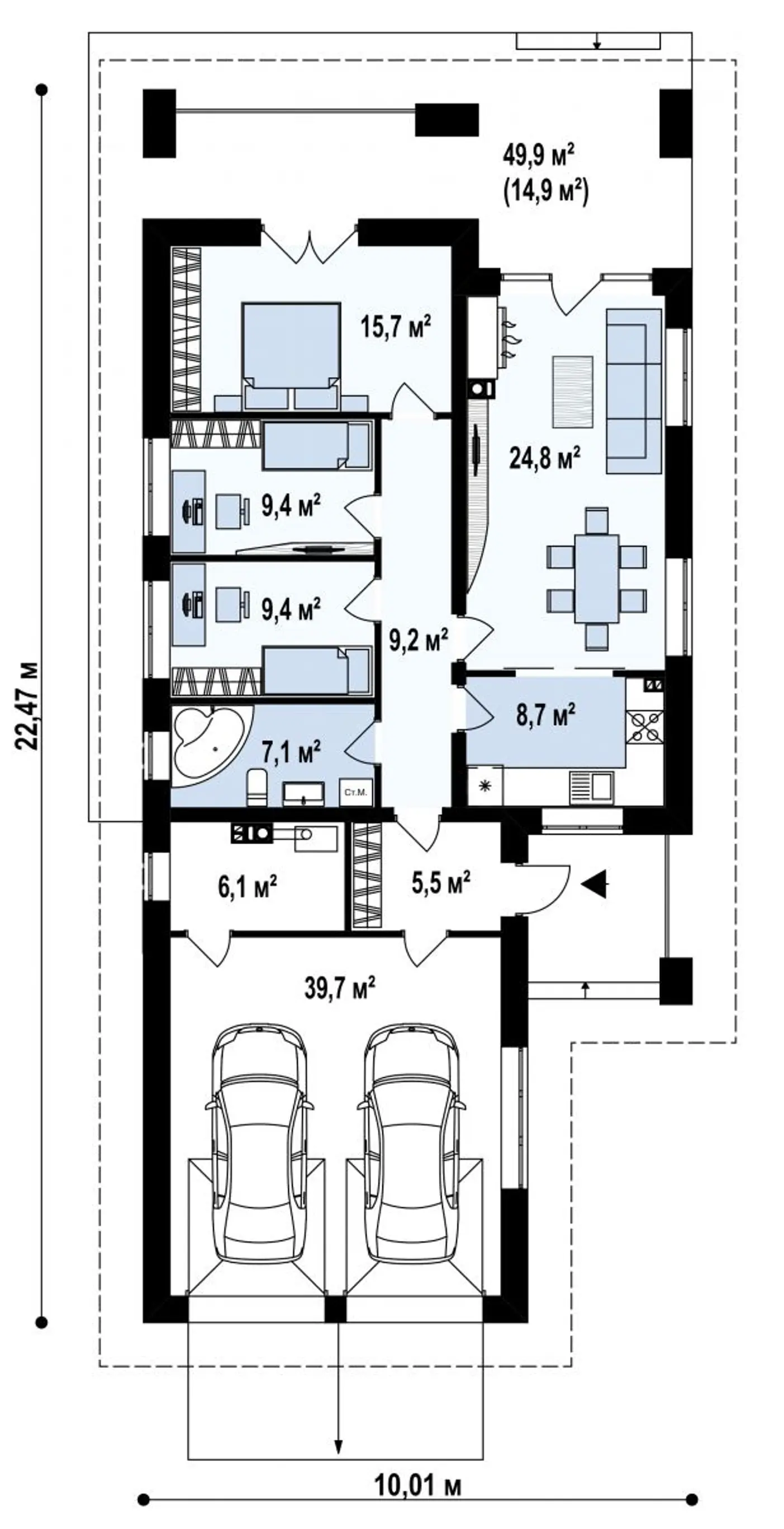
S3-134-6 (Z327) - Светлый компактный дом с продуманной планировкой подойдет для небольшой семьи из трех-четырех человек.
Четырехскатная крыша, простая конструкция, графитовые оттенки фасада и декор из натурального дерева делает этот дом воплощением классической архитектуры.
Главным преимуществом проекта станет большой гараж на два автомобиля, в который можно выйти прямо из дома.
Вся обстановка четко поделена на две части:
• Слева расположились ванная и комнаты. В каждой из них есть компактная гардеробная, а в хозяйской спальне еще и выход на красивую террасу.
• Справа находится кухня с раздвижными дверями и гостиная с камином и дверью на улицу. Всегда можно устроить чаепитие на свежем воздухе.

В доме предусмотрена своя котельная, где спрячутся все необходимые отопительные и распределительные приборы.

Постройка отлично впишется в любой пейзаж, хоть в черте города, хоть за ней.

3D Модель

Дизайн интерьера

Понравился этот дом?

Отправьте нам сообщение, и мы ответим на все интересующие вас вопросы.

Аккредитованы в ведущих банках

Корзина
Ваша корзина пуста
Выберите в каталоге интересующий товар и нажмите кнопку "В корзину"
Отложенные товары
Отложенных товаров нет
Выберите в каталоге интересующий товар и нажмите кнопку "В избранное"
Заказать звонок