Проекты домов Оформить
ипотеку
Стройматериалы Участки Строительство
Выберите свой регион строительства
Крымский федеральный округ
Крым
Close mobile menu

Характеристики дома:

Площадь дома

276 m2

Кол-во жилых комнат

6+
Стоимость проекта АР+КР
67,800 ₽

Хотите изменить планировку?

Отправьте запрос архитектору и обсудите с ним ваши идеи по перепланировке.

О проекте

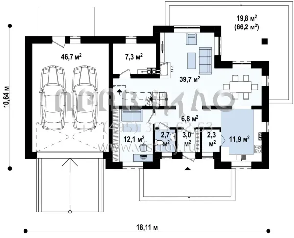
S3-276 (Z171) - По этому проекту можно построить дом, в котором каждый житель найдет удобную для себя комнату. В коттедже есть гараж для двух машин, большая гостиная с обеденной зоной и отдельная кухня. Дополнительный плюс — кабинет на первом этаже, который можно превратить в спальню.
Архитекторы выделили комнаты для разных целей. Место с диванами зонировано за счет формы стен и перегородок. Отсюда можно попасть на веранду или наслаждаться видом живого огня в камине. 
Обеденный стол расположен чуть дальше и отделен изгибом стены. Большой проем ведет в кухню, поэтому сервировка званого ужина не составит проблем. Но в кухню можно попасть и из коридора, минуя помещения для отдыха. 
На втором этаже жители найдут три спальни. Для детских комнат предусмотрена большая ванная с просторным гардеробом. Но супружеская пара сможет наслаждаться не только просторным помещением для сна, но и изолированной ванной с гардеробной. 

Аккредитованы в ведущих банках

Корзина
Ваша корзина пуста
Выберите в каталоге интересующий товар и нажмите кнопку "В корзину"
Отложенные товары
Отложенных товаров нет
Выберите в каталоге интересующий товар и нажмите кнопку "В избранное"
Заказать звонок