Проекты домов Оформить
ипотеку
Стройматериалы Участки Строительство
Выберите свой регион строительства
Крымский федеральный округ
Крым
Close mobile menu

Характеристики дома:

Площадь дома

123 m2

Кол-во жилых комнат

5
Стоимость проекта АР+КР
52,000 ₽

Хотите изменить планировку?

Отправьте запрос архитектору и обсудите с ним ваши идеи по перепланировке.

О проекте

Проект S3-123 (Z580)— компактный мансардный дом для семьи

Проект S3-123 (Z580)— это современный и функциональный дом размером 9×9 м, в котором продумано каждое помещение для удобной жизни семьи. Компактные габариты делают его универсальным выбором: такой дом можно построить как на небольшой городской, так и на просторной загородной улице. Благодаря мансардному этажу жилая площадь увеличена без лишних затрат, а архитектура остается лаконичной и гармоничной.

Архитектура и внешний вид


Фасад выполнен в светлой гамме, которую подчеркивает контрастная кровля и деревянные элементы отделки. Простая форма здания и двускатная крыша придают дому традиционный характер, но современное оформление делает его актуальным и стильным. Большие окна в гостиной и на мансарде обеспечивают естественное освещение, создавая ощущение простора внутри.

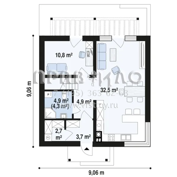
Планировочные решения


Главным преимуществом проекта является наличие дополнительной комнаты на первом этаже. Ее можно использовать как спальню для гостей или пожилых членов семьи, кабинет для работы или детскую. Рядом удобно расположены ванная и хозяйственное помещение. Центр дома — просторная гостиная, объединённая с кухней и столовой, с выходом на террасу. Такая планировка идеально подходит для семейных ужинов и встреч с друзьями.

На мансардном этаже запроектированы три спальни и ванная комната, что делает проект удобным для семьи из 3–5 человек. 

Функциональность и комфорт


Дом S3-123 (Z580) совмещает компактность и простор. Он удобен в строительстве, экономичен в содержании и в то же время позволяет реализовать различные сценарии семейной жизни. На небольшой площади здесь есть место для отдыха, работы, уединения и совместного времяпровождения.

Для кого этот проект


S3-123 (Z580) подойдет молодым семьям, которые хотят построить собственный дом вместо квартиры, а также тем, кто ценит рациональные решения и уютную атмосферу. Наличие комнаты на первом этаже делает его особенно актуальным для семей с разными поколениями.

Аккредитованы в ведущих банках

Корзина
Ваша корзина пуста
Выберите в каталоге интересующий товар и нажмите кнопку "В корзину"
Отложенные товары
Отложенных товаров нет
Выберите в каталоге интересующий товар и нажмите кнопку "В избранное"
Заказать звонок