Проекты домов Оформить
ипотеку
Стройматериалы Участки Строительство
Выберите свой регион строительства
Крымский федеральный округ
Крым
Close mobile menu

Характеристики дома:

Площадь дома

115 m2

Кол-во жилых комнат

4
Стоимость проекта АР+КР
58,100 ₽

Хотите изменить планировку?

Отправьте запрос архитектору и обсудите с ним ваши идеи по перепланировке.

О проекте

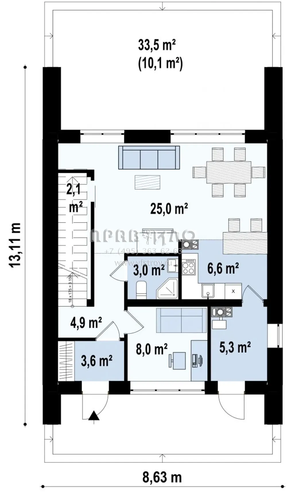
S3-115-2(Z442) - Этот проект двухэтажного дома привлекает своей необычной геометрией, элегантностью и современным стилем. Он идеально подойдет для проживания семьи из 3-4 человек.

Первый этаж традиционно отведен под дневную зону. Здесь мы видим просторную гостиную, столовую и кухню – всё в едином пространстве. В гостиной установлен камин – залог тепла и уюта в холодные зимние вечера. Из гостиной можно выйти на террасу, которая наверняка станет любимым местом времяпрепровождения в теплый сезон. Проектом предусмотрен полноценный санузел с душевой кабиной и дополнительная комната, которая по Вашему усмотрению может стать кабинетом или гостевой спальней.

Второй этаж – это две просторные спальни и общая ванная комната. При этом у обеих спален есть собственные гардеробные и выходы на балкон.

Аккредитованы в ведущих банках

Корзина
Ваша корзина пуста
Выберите в каталоге интересующий товар и нажмите кнопку "В корзину"
Отложенные товары
Отложенных товаров нет
Выберите в каталоге интересующий товар и нажмите кнопку "В избранное"
Заказать звонок