Проекты домов Оформить
ипотеку
Стройматериалы Участки Строительство
Выберите свой регион строительства
Крымский федеральный округ
Крым
Close mobile menu

Характеристики дома:

Площадь дома

115 m2

Кол-во жилых комнат

4
Стоимость проекта АР+КР
52,000 ₽

Хотите изменить планировку?

Отправьте запрос архитектору и обсудите с ним ваши идеи по перепланировке.

О проекте

S3-115-4(z1 el) - Издалека этот домик может показаться игрушечным. Архитекторы разработали его в качестве дачного коттеджа или загородной резиденции для небольшой семьи. Он также может выручить в том случае, когда заказчик не планирует тратить много денег на строительство.
Весь первый этаж занимает гостиная и кухня. Причем обе комнаты полностью отделены друг от друга. Поэтому пар и запахи не будут мешать отдыхающим на диванах членам семьи. У входа находится санузел и котельная.
Большие двери из гостиной ведут на открытую веранду. В летнее время их можно открывать настежь, объединяя внутреннее и внешнее пространство и впуская в дом воздух с ароматами цветущих деревьев.
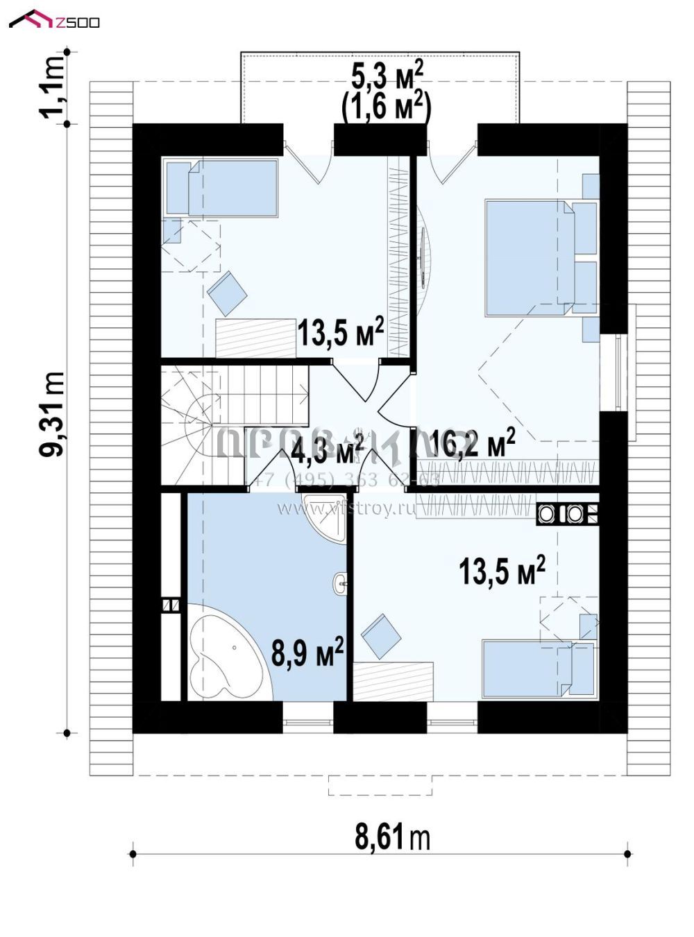
Второй этаж предназначен для спален. На небольшой площади расположились три жилые комнаты. В общем коридоре находится дверь в ванную комнату. Из двух помещений на мансарде есть выход на балкон.

Аккредитованы в ведущих банках

Корзина
Ваша корзина пуста
Выберите в каталоге интересующий товар и нажмите кнопку "В корзину"
Отложенные товары
Отложенных товаров нет
Выберите в каталоге интересующий товар и нажмите кнопку "В избранное"
Заказать звонок