Проекты домов Оформить
ипотеку
Стройматериалы Участки Строительство
Выберите свой регион строительства
Крымский федеральный округ
Крым
Close mobile menu

Характеристики дома:

Площадь дома

120 m2

Кол-во жилых комнат

5
Стоимость проекта АР+КР
58,100 ₽

Хотите изменить планировку?

Отправьте запрос архитектору и обсудите с ним ваши идеи по перепланировке.

О проекте

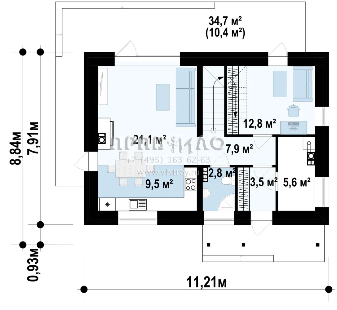
s3-120-2 (Z225 k) При выборе проекта для постройки дачного домика необходимо убедиться в том, что внутри достаточно места для размещения большого количества гостей. Причем речь идет как о дневной зоне, так и о спальнях для отдыха. 

Этот коттедж не может выделиться своими размерами. Но он точно займет лидерские позиции в рейтинге по удобству внутренней планировки. Архитекторы расположили спальни так, что коттедж можно рассматривать и как вариант для экономного жилья. 

Пространство гостиной увеличено за счет кухни, которая здесь полностью открытая. Разделение на зоны происходит только за счет стола. В одной из стен предусмотрено большое окно. Есть два выхода на примыкающую веранду. Рядом с кухней располагается туалет, а чуть дальше — жилая комната первого уровня. 
В помещения сверху можно попасть по лестнице. В мансарде находятся три жилые комнаты. Проживающие в них могут пользоваться общей ванной. Но в главной спальне есть также отдельный гардероб с мансардным окном. 

Дизайн интерьера

Понравился этот дом?

Отправьте нам сообщение, и мы ответим на все интересующие вас вопросы.

Аккредитованы в ведущих банках

Корзина
Ваша корзина пуста
Выберите в каталоге интересующий товар и нажмите кнопку "В корзину"
Отложенные товары
Отложенных товаров нет
Выберите в каталоге интересующий товар и нажмите кнопку "В избранное"
Заказать звонок