Проекты домов Оформить
ипотеку
Стройматериалы Участки Строительство
Выберите свой регион строительства
Крымский федеральный округ
Крым
Close mobile menu

Характеристики дома:

Площадь дома

110 m2

Кол-во жилых комнат

4
Стоимость проекта АР+КР
52,000 ₽

Хотите изменить планировку?

Отправьте запрос архитектору и обсудите с ним ваши идеи по перепланировке.

О проекте

S3-110-1 (Z229) - Этот проект выделяется на фоне аналогов компактностью и интересным экстерьерным решением мансардного этажа. Окна, проделанные в скатной кровле, продолжаются на стенах коттеджа. Благодаря этому он выглядит эффектнее снаружи, а внутренние помещения лучше освещены в светлое время суток. 
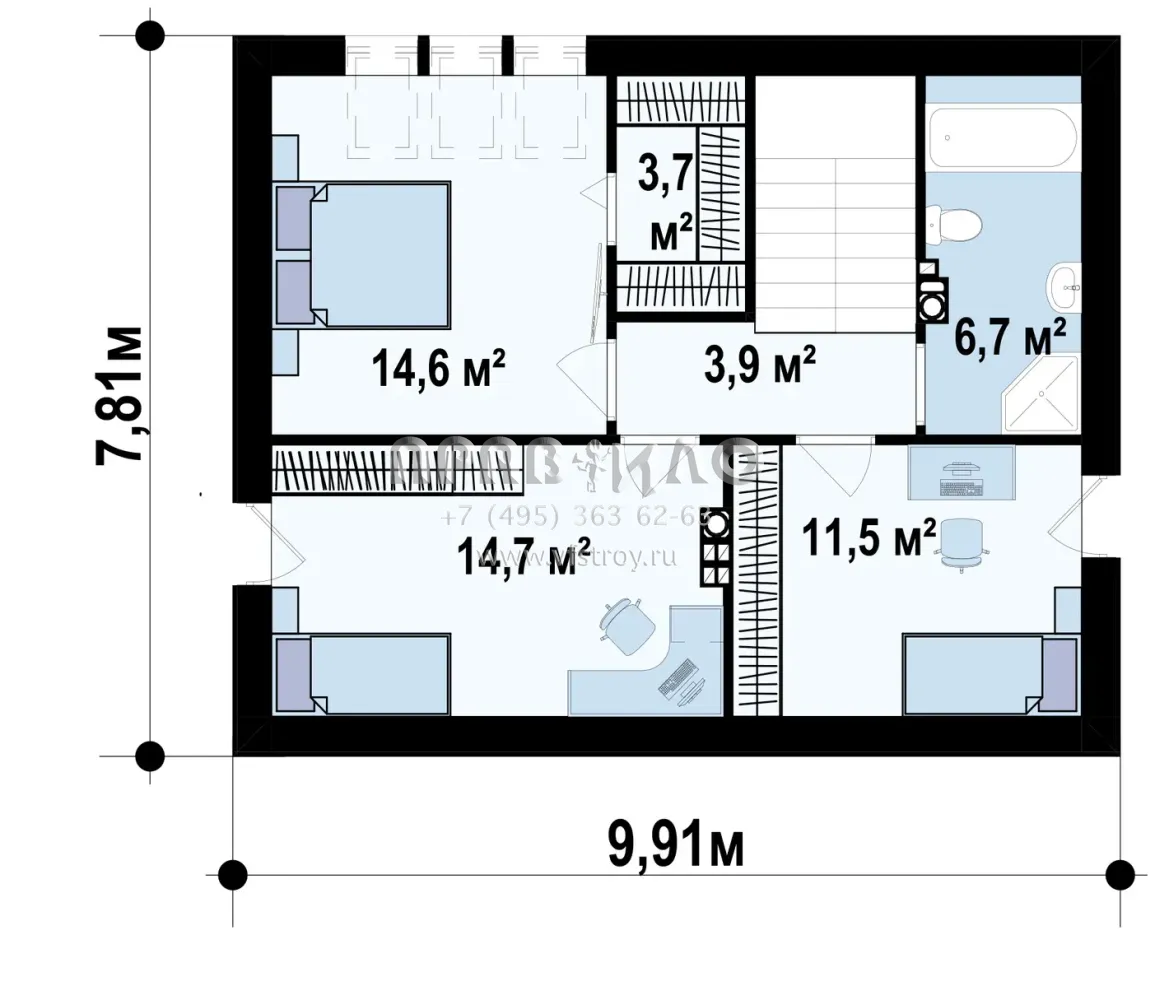
Несмотря на небольшие внешние размеры, внутри достаточно просторно для постоянного проживания и использования постройки как дачного домика. Весь первый уровень дома отдан под гостиную и кухню, которая отделена от нее перегородкой. Кроме того, здесь есть котельная с выходом во двор и дневной санузел. 
Спальни находятся наверху. В коттедже три полноценных жилых помещения и общая ванная комната. Для владельцев дома предусмотрен индивидуальный гардероб. 
Насладиться закатом и свежим воздухом в теплое время года можно с веранды. Выход на нее открывается через большое французское окно в гостиной. Из кухни на улицу предусмотрена отдельная дверь для удобной сервировки стола во время пикников и дружеских посиделок за городом. 

Дизайн интерьера

Понравился этот дом?

Отправьте нам сообщение, и мы ответим на все интересующие вас вопросы.

Аккредитованы в ведущих банках

Корзина
Ваша корзина пуста
Выберите в каталоге интересующий товар и нажмите кнопку "В корзину"
Отложенные товары
Отложенных товаров нет
Выберите в каталоге интересующий товар и нажмите кнопку "В избранное"
Заказать звонок