Проекты домов Оформить
ипотеку
Стройматериалы Участки Строительство
Выберите свой регион строительства
Крымский федеральный округ
Крым
Close mobile menu

Характеристики дома:

Площадь дома

156 m2

Кол-во жилых комнат

6+
Стоимость проекта АР+КР
67,800 ₽

Хотите изменить планировку?

Отправьте запрос архитектору и обсудите с ним ваши идеи по перепланировке.

О проекте

S3-156-9(Zx24 v2 pk)- двухэтажный дом с красивой конструкцией и удобной планировкой. Он имеет традиционное архитектурное решение и практичный фасад с кирпичной отделкой.
Коробка построена с использованием качественного фундамента и плит перекрытия.
Гараж гармонично вписался в общую конструкцию и не занимает дополнительного места на участке.
Сразу за входной группой расположился вместительный санузел со всем необходимым оснащением. А справа, за прихожей уютный кабинет.  Далее компактная гостиная с камином и большая кухня с выходом на террасу. Это делает удобным перенос обеда на свежий воздух.
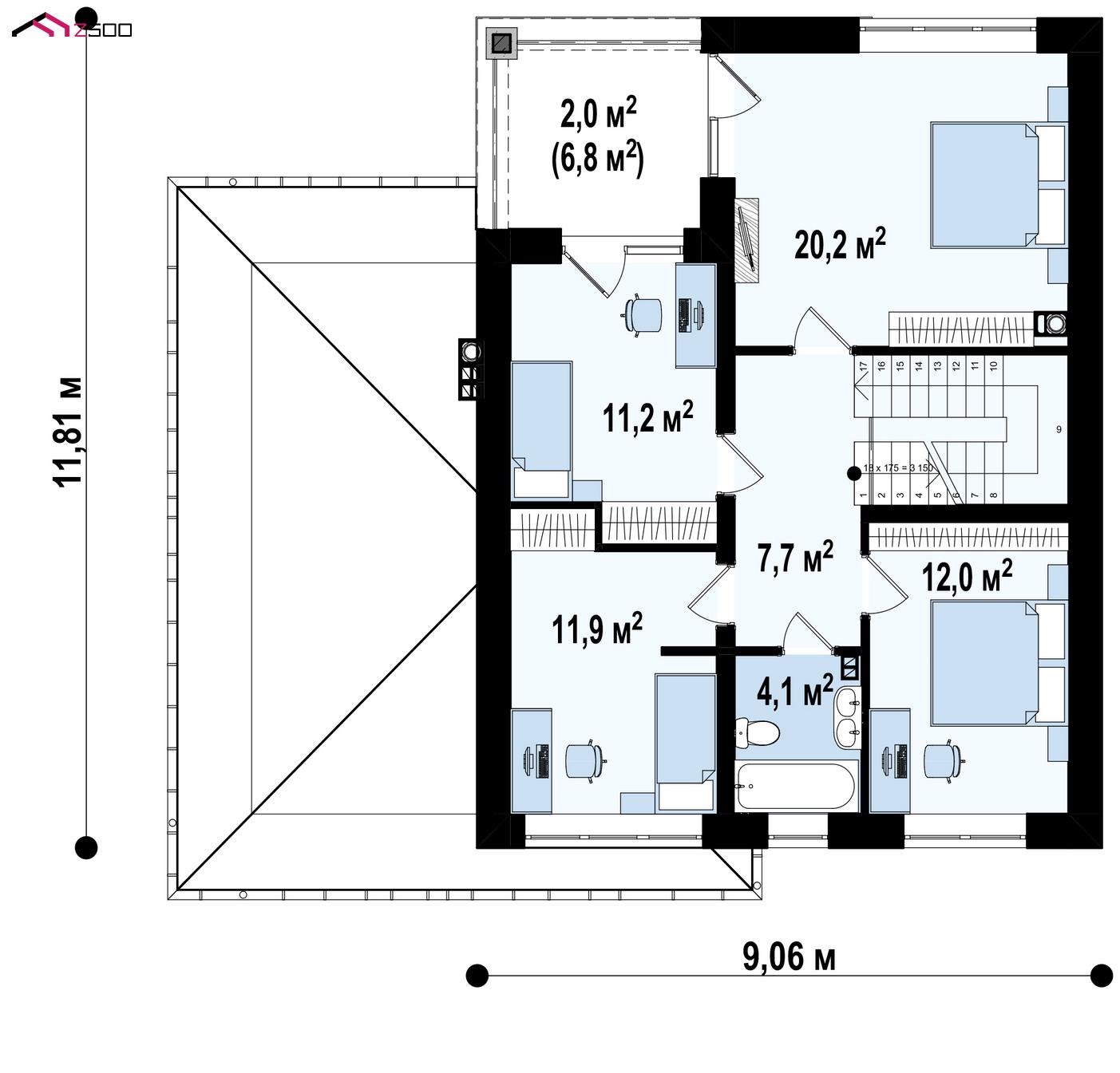
На втором этаже расположились четыре спальни и ванная. Из двух комнат есть доступ на балкон.
Этот замечательный вариант можно стать надежным жилищем для большой семьи на долгие годы.

Модификации проекта

Аккредитованы в ведущих банках

Корзина
Ваша корзина пуста
Выберите в каталоге интересующий товар и нажмите кнопку "В корзину"
Отложенные товары
Отложенных товаров нет
Выберите в каталоге интересующий товар и нажмите кнопку "В избранное"
Заказать звонок