Проекты домов Оформить
ипотеку
Стройматериалы Участки Строительство
Выберите свой регион строительства
Крымский федеральный округ
Крым
Close mobile menu

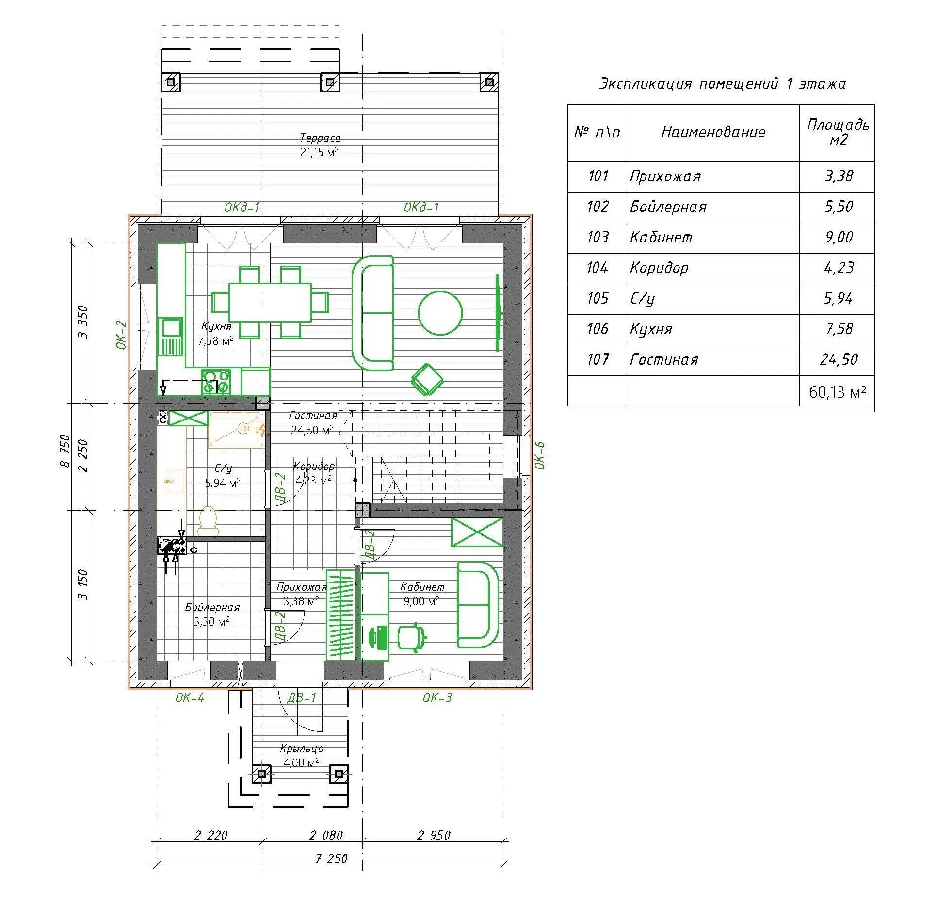
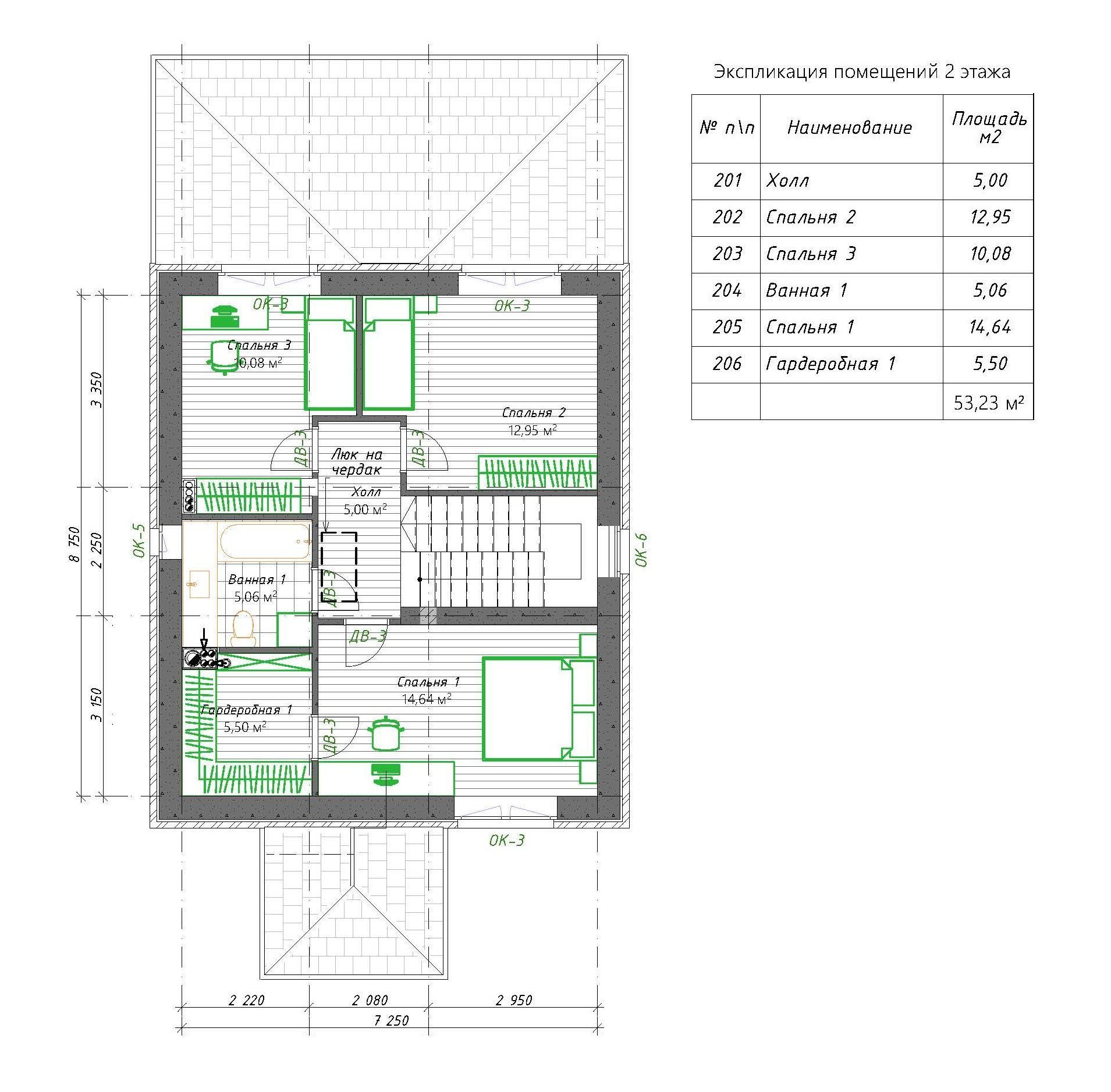
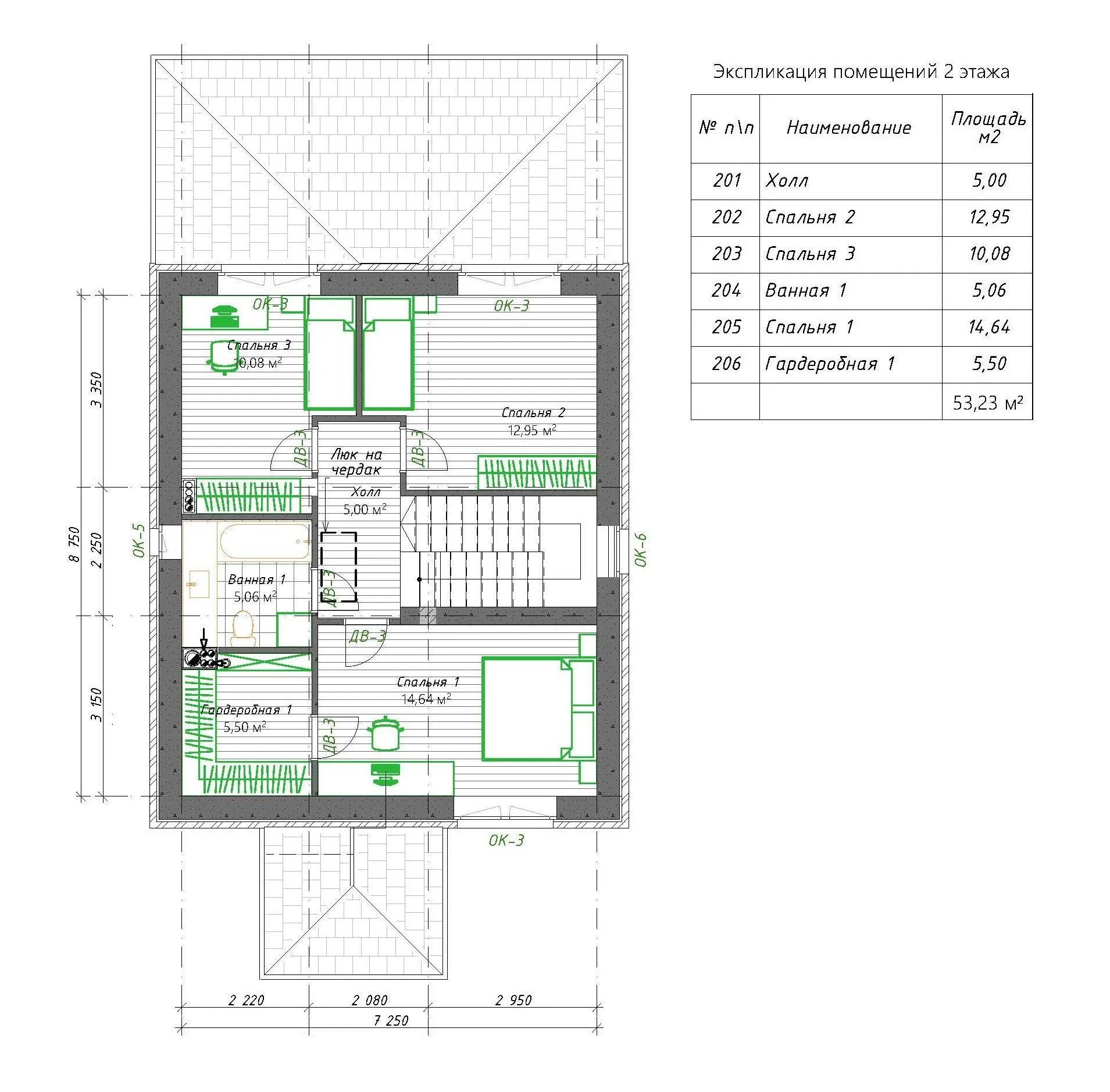
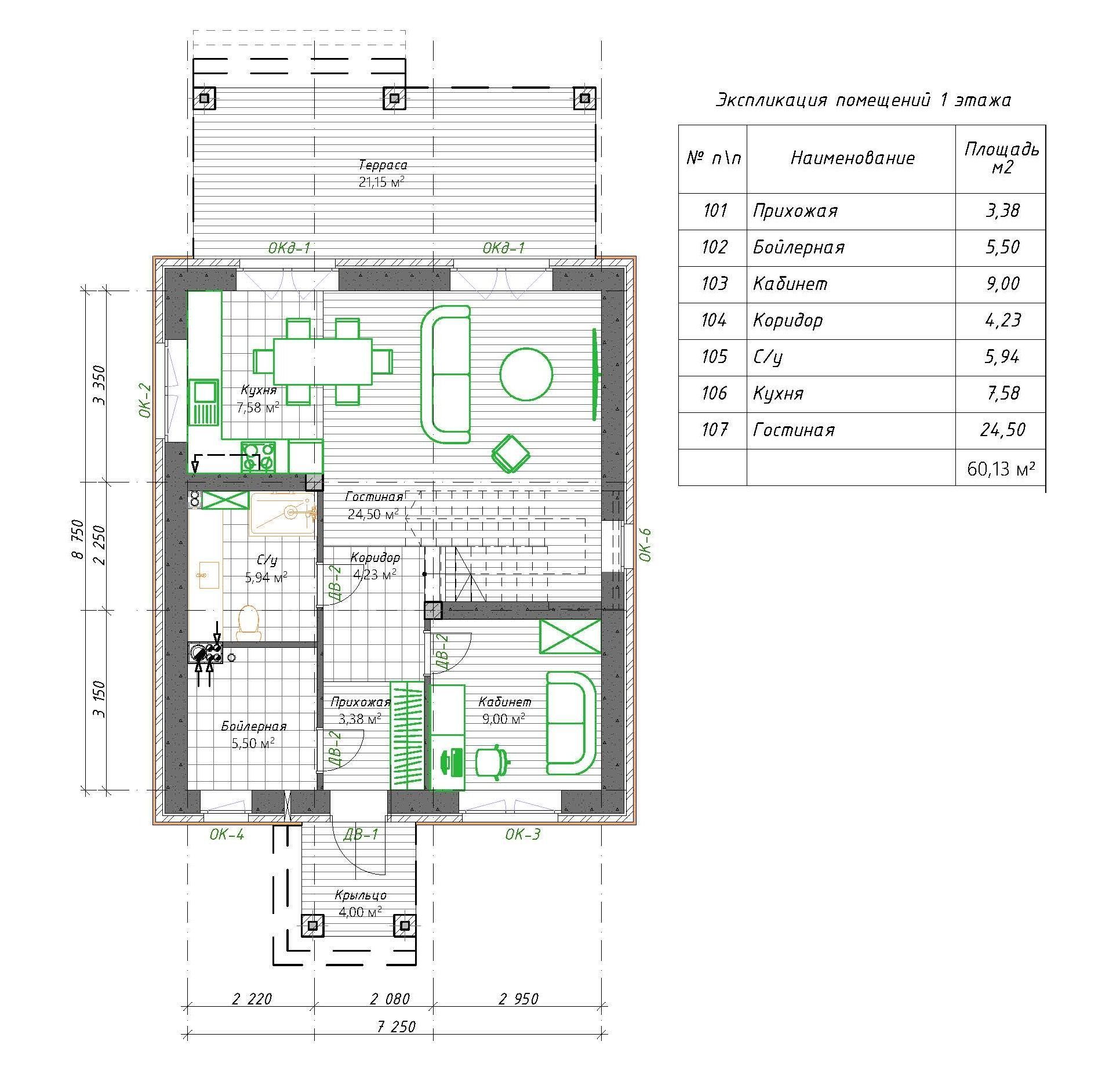
Характеристики дома:

Площадь дома

134,5 m2

Кол-во жилых комнат

5
Стоимость проекта АР+КР
39,900 ₽

Хотите изменить планировку?

Отправьте запрос архитектору и обсудите с ним ваши идеи по перепланировке.

О проекте

S-113..Вашему вниманию предоставляется строгий двухэтажный дом, где с комфортом сможет проживать семья с двумя детьми. Ниже – подробное описание того, что Вы сможете найти в этом коттедже.
Первый этаж – это помещения для дневного времяпрепровождения. Здесь есть кухня, совмещенная с гостиной, один полноценный санузел с душевой кабиной и даже комната-кабинет (впрочем, комнате можно присвоить и другое назначение в случае необходимости). А ещё на первом этаже есть просторная терраса, которая станет местом притяжения в хорошую погоду.
Второй этаж традиционно отведён под спальни. Здесь их спроектировано три, при этом у самой большой есть еще и отдельная гардеробная. Кроме того, для нужд проживающих на этаже организована ванная комната.
В доме нет ничего лишнего, и правильное зонирование пространства позволяет с умом использовать каждый квадратный метр. Внешняя строгость придётся по вкусу ценителям приглушенных цветов и классической архитектуры. Возможно, именно это и есть дом Вашей мечты. Позвоните нам, чтобы узнать все детали.

Аккредитованы в ведущих банках

Корзина
Ваша корзина пуста
Выберите в каталоге интересующий товар и нажмите кнопку "В корзину"
Отложенные товары
Отложенных товаров нет
Выберите в каталоге интересующий товар и нажмите кнопку "В избранное"
Заказать звонок