Проекты домов Оформить
ипотеку
Стройматериалы Участки Строительство
Выберите свой регион строительства
Крымский федеральный округ
Крым
Close mobile menu

Характеристики дома:

Площадь дома

310 m2

Кол-во жилых комнат

6+
Стоимость проекта АР+КР
47,400 ₽

Хотите изменить планировку?

Отправьте запрос архитектору и обсудите с ним ваши идеи по перепланировке.

О проекте

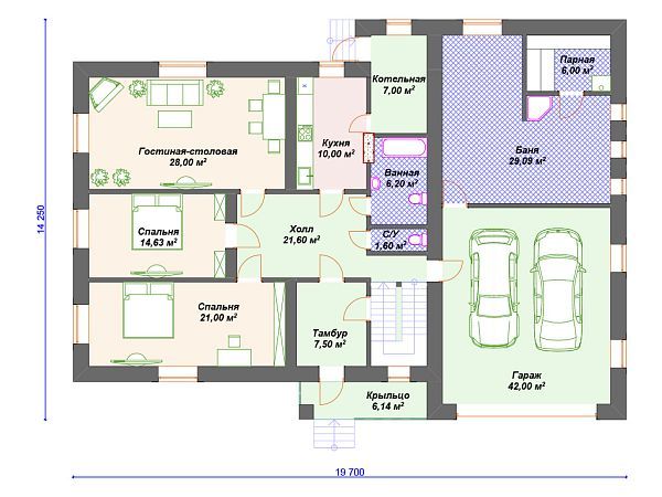
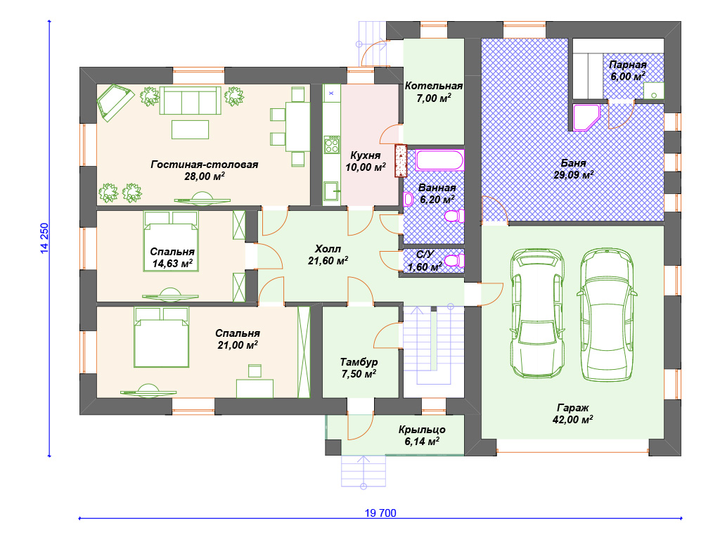
S4-310 (К-004) Двухэтажный дом, с полноценным вторым этажом, выполнен из газобетона, с отделкой наружных стен - облицовочный кирпич. Строительство здания осуществляется на фундаменте - монолитная плита. Вход в дом осуществляется с крыльца в тамбур 7.5 кв м. далее проходим в холл, из которого можно пройти во все помещения этажа. На этаже две комнаты 14.63 кв м и 21 кв м, ванная 6 кв м и маленький с/у. Кухня в доме запроектирована отдельным помещением 10 кв м. Обеденная зона расположена в гостиной, площадью 28 кв м. Для отопления дома предусмотрена котельная под газовое оборудование 7 кв м. Войти можно с улицы, а так же предусмотрен вход с кухни. По правой стороне главного фасада дома расположен гараж на 2 машины, выполнен в виде пристройки к дому. Второй этаж спальная зона из пяти спален, маленького с/у и ванной комнаты. В одной из спален предусмотрен гардероб. Планировка этого дома очень удобная и комфортная для комфортной жизни современной семьи.

Аккредитованы в ведущих банках

Корзина
Ваша корзина пуста
Выберите в каталоге интересующий товар и нажмите кнопку "В корзину"
Отложенные товары
Отложенных товаров нет
Выберите в каталоге интересующий товар и нажмите кнопку "В избранное"
Заказать звонок