Проекты домов Оформить
ипотеку
Стройматериалы Участки Строительство
Выберите свой регион строительства
Крымский федеральный округ
Крым
Close mobile menu

Характеристики дома:

Площадь дома

307 m2

Кол-во жилых комнат

6+
Стоимость проекта АР+КР
49,000 ₽

Хотите изменить планировку?

Отправьте запрос архитектору и обсудите с ним ваши идеи по перепланировке.

О проекте

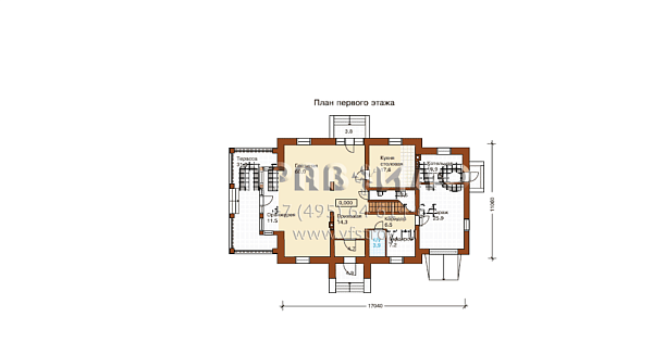
Дом выполнен в классическом стиле с двумя полноценными этажами и пристроенным гаражом. Планировка имеет четкую осевую композицию и отвечает самым современным функциональным требованиям. На первом этаже центральное место занимает большая гостиная с камином, зимним садом и выходом на террасу. Второй этаж является зоной отдыха для владельцев. Он оснащен четырьмя просторными спальнями, кабинетом и двумя ванными комнатами. Из двух спален предусмотрен выход на террасу, находящуюся над гаражом. Русты, балясины, портик и наличники придают дому парадность загородного особняка.

Аккредитованы в ведущих банках

Корзина
Ваша корзина пуста
Выберите в каталоге интересующий товар и нажмите кнопку "В корзину"
Отложенные товары
Отложенных товаров нет
Выберите в каталоге интересующий товар и нажмите кнопку "В избранное"
Заказать звонок