Проекты домов Оформить
ипотеку
Стройматериалы Участки Строительство
Выберите свой регион строительства
Крымский федеральный округ
Крым
Close mobile menu

Характеристики дома:

Площадь дома

141 m2

Кол-во жилых комнат

6+
Стоимость проекта АР+КР
36,800 ₽

Хотите изменить планировку?

Отправьте запрос архитектору и обсудите с ним ваши идеи по перепланировке.

О проекте

Деревянный дом прямоугольной формы, выполнен из бревна диаметром 240 мм. Конструкция крыши - сложная. Входим в дом с крылечка и через прихожую попадаем в холл, площадью 4.5 кв м.

Первый этаж занимают: холл, спальня 13 кв м, кухня 13.5 кв м, гостиная 22.5 кв м и маленький с/у 2.4 кв м с раковиной. В проекте на втором этаже предусмотрено 4 спальни, поэтому эту спальню можно использовать как гостевую или кабинет. Для отопления дома предусмотрена котельная рассчитанная под газовое оборудование, с индивидуальным входом с улицы.
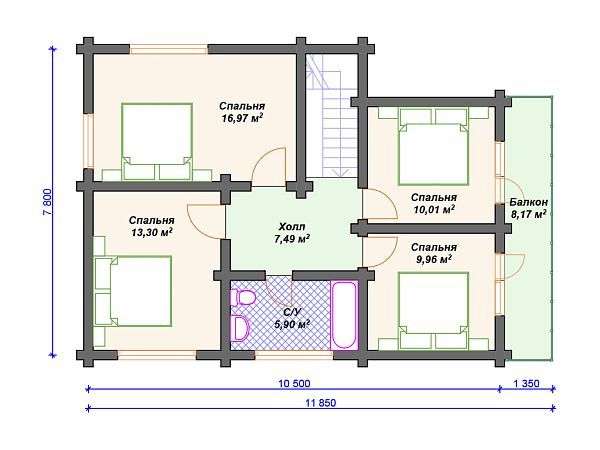
Лестница на второй этаж размещена в гостиной, по правой стороне при входе. Второй этаж мансардный, поделен на четыре спальни и с/у. Две спальни по 10 кв м с выходом на балкон, 13 кв и ещё спальня почти 17 кв м. санузел 5.98 кв м с ванной и окном.

Проект деревянного дома, в котором на сравнительно небольшой площади есть все необходимое для комфортной жизни нескольких человек.

Аккредитованы в ведущих банках

Корзина
Ваша корзина пуста
Выберите в каталоге интересующий товар и нажмите кнопку "В корзину"
Отложенные товары
Отложенных товаров нет
Выберите в каталоге интересующий товар и нажмите кнопку "В избранное"
Заказать звонок