Проекты домов Оформить
ипотеку
Стройматериалы Участки Строительство
Выберите свой регион строительства
Крымский федеральный округ
Крым
Close mobile menu

Характеристики дома:

Площадь дома

239 m2

Кол-во жилых комнат

4
Стоимость проекта АР+КР
40,000 ₽

Хотите изменить планировку?

Отправьте запрос архитектору и обсудите с ним ваши идеи по перепланировке.

О проекте

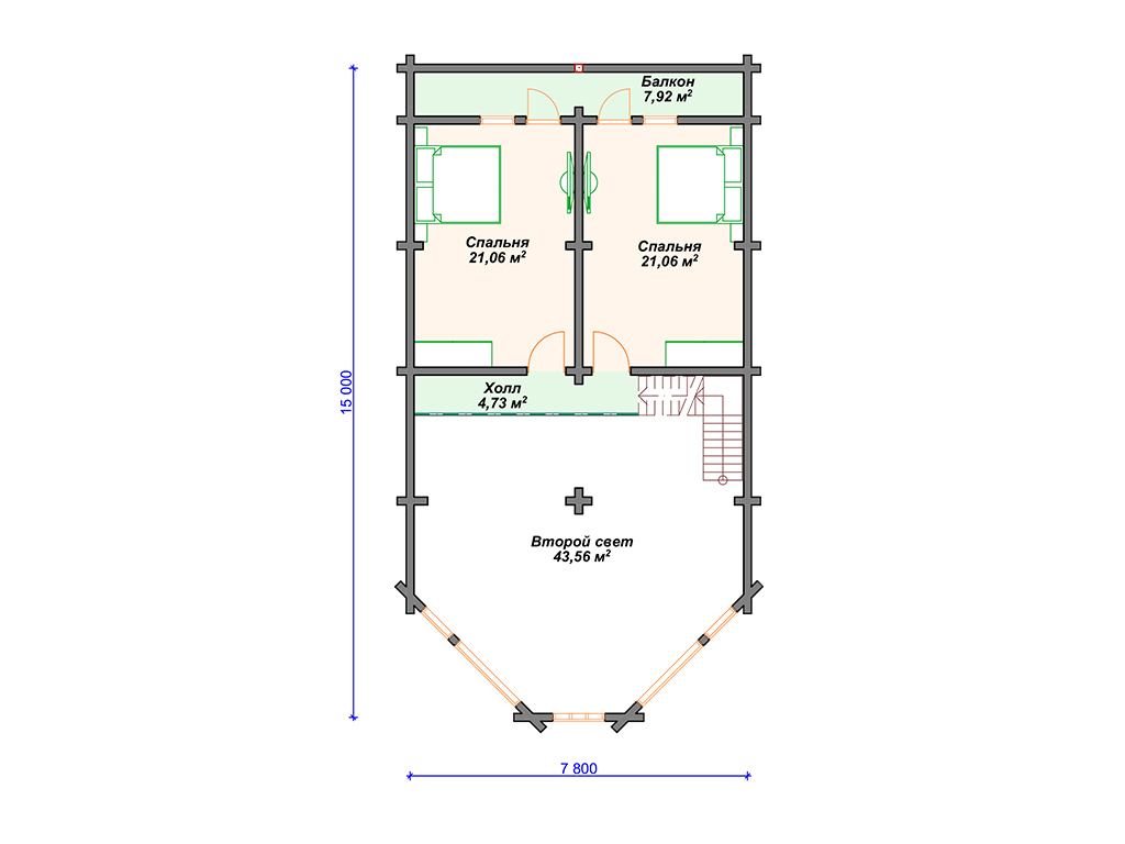
S4-239 (ДС-170) Дом общей площадью 239 кв м. Габариты дома (по краям) - 13.00х19.10 м. Дом прямоугольной формы, выполнен из бруса. Конструкция кровли - двухскатная. Строительство здания осуществляется на свайно-ростверковом фундаменте. Перекрытия 1 и 2 эт.- деревянные балки. Покрытие кровли - мягкая. Вход в дом осуществляется с крыльца, крышей которого является перекрытие балкона второго этажа. Заходим и сразу попадаем в холл 13 кв м, прямоугольной формы. Сразу по правую руку расположен маленький с/у 2 кв м с раковиной и ванная комната 5 кв м. По правой стороне кухня-столовая 21 кв м. Из холла так же предусмотрен вход в гараж, площадь которого 28.9 кв м. Расположен по правой стороне главного фасада дома. Далее проходим в просторную и светлую гостиную, украшением которой служит эркер. На этаже также размещена комната 14 кв м. Это помещение удобно использовать как гостевую или кабинет (или к примеру как тренажерную комнату). Вход в нее осуществляется с гостиной. Перед гостиной расположена большая терраса 43 кв м, которая подойдёт для отдыха всей семьи. Поднимаемся на второй мансардный этаж со вторым светом. На этаже две равноценные по площади спальни 21 кв м. Из обеих спален предусмотрен выход на балкон. Второй свет расположен над зоной гостиной. Если дом может "позволить себе" второй свет, это добавляет ему красоты и эстетичности. Загородный деревянный дом прекрасно подойдёт для постоянного проживания семьи из 3-4 человек.

Аккредитованы в ведущих банках

Корзина
Ваша корзина пуста
Выберите в каталоге интересующий товар и нажмите кнопку "В корзину"
Отложенные товары
Отложенных товаров нет
Выберите в каталоге интересующий товар и нажмите кнопку "В избранное"
Заказать звонок