info@vfstroy.ru
Москва, 1-й Кожевнический переулок, дом 6, строение 1, этаж 3
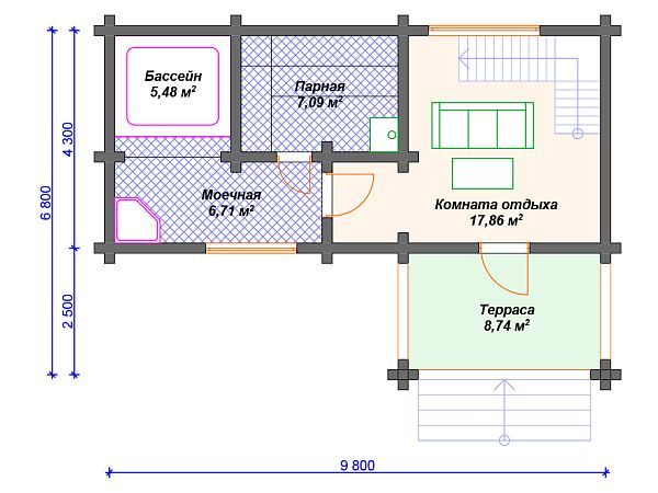
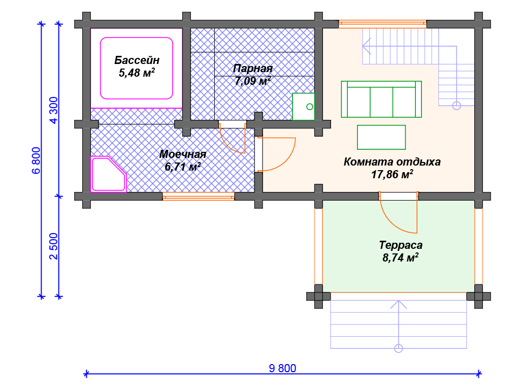
Проект деревянной бани с бассейном SB4-73 (Б-044)
Характеристики дома:
Площадь дома
73 m2
Кол-во жилых комнат
2
Стоимость проекта АР+КР
31,800 ₽
О проекте
Характеристики проекта SB4-73 (Б-044)
| Классификация архитектора | Б-044 |
| Общая площадь | 73 м2 |
| Количество этажей | двухэтажный |
| Возможный материал кровли | металлочерепица, гибкая черепица, керамическая черепица, композитная черепица, цементно-песчаная черепица, фальцевая кровля |
| Количество жилых комнат | 2 |
| Тип перекрытий | по деревянным балкам |
| Материал стен | оцилиндрованное бревно, профилированный брус, клееный брус |