Проекты домов Оформить
ипотеку
Стройматериалы Участки Строительство
Выберите свой регион строительства
Крымский федеральный округ
Крым
Close mobile menu

Характеристики дома:

Площадь дома

235 m2

Кол-во жилых комнат

6+
Стоимость проекта АР+КР
45,700 ₽

Хотите изменить планировку?

Отправьте запрос архитектору и обсудите с ним ваши идеи по перепланировке.

О проекте

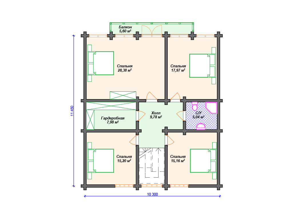
S4-235 (А-024). Особенностями этого дома являются большое количество спален, просторная терраса, изолированные гостиная и кухня. Коттедж площадью чуть более 230 кв. м. имеет необычный внешний вид. По всему фасаду расположены большие окна, через которые внутрь попадает много солнечного света и тепла.
Гостиная и кухня в коттедже находятся рядом, но между ними предусмотрена перегородка. За счет нее дым и пар от готовки еды не будут попадать в зону для отдыха. Из гостевого пространства можно выйти на веранду, защищенную перголой. Ее можно использовать в качестве летней столовой.
Жилые спальни находятся на первом этаже (2 шт.) и мансардном уровне (4 шт.). Ванные комнаты есть наверху и внизу. Также на втором уровне есть общая гардеробная.

Аккредитованы в ведущих банках

Корзина
Ваша корзина пуста
Выберите в каталоге интересующий товар и нажмите кнопку "В корзину"
Отложенные товары
Отложенных товаров нет
Выберите в каталоге интересующий товар и нажмите кнопку "В избранное"
Заказать звонок