Проекты домов Оформить
ипотеку
Стройматериалы Участки Строительство
Выберите свой регион строительства
Крымский федеральный округ
Крым
Close mobile menu

Характеристики дома:

Площадь дома

209 m2

Кол-во жилых комнат

3
Стоимость проекта АР+КР
47,200 ₽

Хотите изменить планировку?

Отправьте запрос архитектору и обсудите с ним ваши идеи по перепланировке.

О проекте

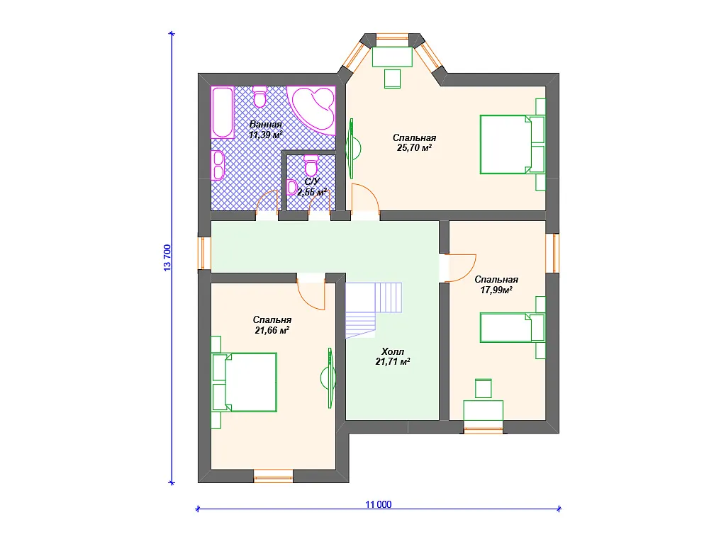
S4-209 (К-259) Дом прямоугольной формы, выполнен из газобетона, с облицовкой наружных стен - фасадная плитка. Конструкция крыши - сложная, с мансардными окнами. Строительство здания осуществляется на фундаменте - монолитная плита. Входим в дом с крыльца накрытого козырьком и проходим в тамбур, площадью 3.42 кв м. Далее проходим в холл, из которого сразу по левой стороне открывается межэтажная лестница, под маршем предусмотрен вход в гараж, расположенный по левой стороне главного фасада дома. Площадь 21.66 кв м. По правой стороне холла сразу при входе - вход в кухню-столовую 17.96 кв м. Пройдя прямо через холл, попадаем во второй чуть более по площади холл 13.80 кв м, из которого можно пройти в гостиную 25.55 кв м, с/у с раковиной и котельную. Рядом с котельной из холла предусмотрен выход на улицу. Удобное решение пользоваться котельной и со стороны улицы, к примеру, нужно из котельной взять какой-то хозяйственный предмет, не проходя через весь дом. Гостиная украшена эркером, благодаря которому увеличивается площадь гостиной. Поднимаемся на второй этаж и проходим в просторный холл 21.71 кв м. На этаже три комфортные по площади спальни - 17.99 кв м, 21 кв м и 25.70 кв м. Для удобства проживающих предусмотрено раздельные с/у с ванной комнатой. Хороший проект для загородного жилья семьи из 4-5 человек.

Аккредитованы в ведущих банках

Корзина
Ваша корзина пуста
Выберите в каталоге интересующий товар и нажмите кнопку "В корзину"
Отложенные товары
Отложенных товаров нет
Выберите в каталоге интересующий товар и нажмите кнопку "В избранное"
Заказать звонок