Проекты домов Оформить
ипотеку
Стройматериалы Участки Строительство
Выберите свой регион строительства
Крымский федеральный округ
Крым
Close mobile menu

Характеристики дома:

Площадь дома

204 m2

Кол-во жилых комнат

5
Стоимость проекта АР+КР
71,370 ₽

Хотите изменить планировку?

Отправьте запрос архитектору и обсудите с ним ваши идеи по перепланировке.

О проекте

S8-204 (Фокстрот). Этот компактный дом с мансардой под двускатной крышей отличается простыми линиями и рациональным использованием внутреннего пространства, что делает его идеальным для небольшой семьи. Сочетание светлых и темных оттенков штукатурки, использованное при оформлении фасада, придает дому дополнительный шарм и привлекательность. Несмотря на свои скромные размеры, этот коттедж предоставляет все необходимое для комфортного проживания.
На первом этаже расположена дневная зона, включающая в себя гостиную с оригинальным дизайном камина. Кухня-столовая, выполненная в едином стиле с гостиной, занимает правую часть этажа. Из гостиной есть выход на заднюю террасу, где можно комфортно провести время с семьей в теплую погоду. Кроме того, на этом этаже предусмотрены кабинет, лестничная площадка, ванная комната и удобное хранилище под лестницей. В прихожей имеется вход в двухместный гараж и техническое помещение для автономного котла.
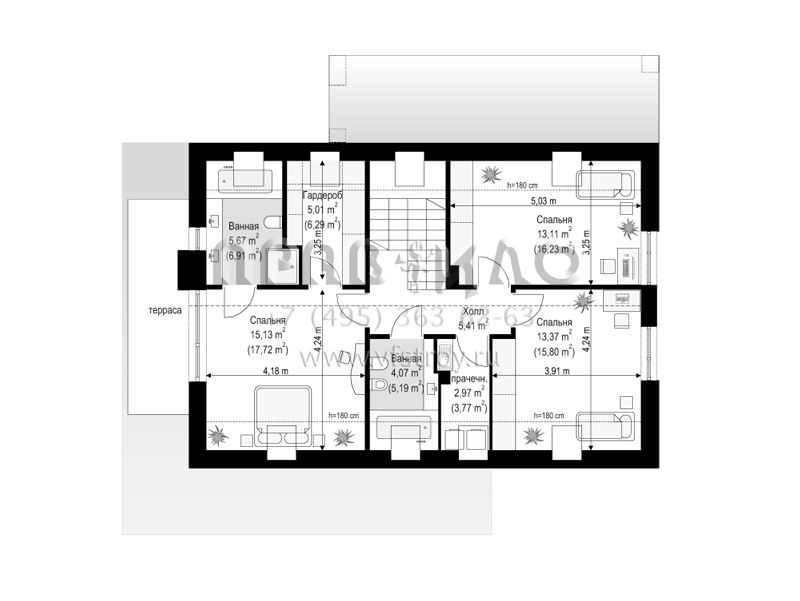
В мансарде проектом предусмотрена зона отдыха, состоящая из трех спален, светлой ванной комнаты, прачечной и лестничной площадки. Главная спальня оборудована отдельной ванной комнатой, просторной гардеробной и имеет выход на террасу, расположенную над гаражной частью дома.
Благодаря продуманному остеклению, естественное освещение максимально используется во всех помещениях коттеджа. Современный дизайн и привлекательная внешняя отделка позволяют легко вписать этот дом в любые концепции ландшафтного дизайна.

Дизайн интерьера

1/3

Понравился этот дом?

Отправьте нам сообщение, и мы ответим на все интересующие вас вопросы.

Аккредитованы в ведущих банках

Корзина
Ваша корзина пуста
Выберите в каталоге интересующий товар и нажмите кнопку "В корзину"
Отложенные товары
Отложенных товаров нет
Выберите в каталоге интересующий товар и нажмите кнопку "В избранное"
Заказать звонок