Проекты домов Оформить
ипотеку
Стройматериалы Участки Строительство
Выберите свой регион строительства
Крымский федеральный округ
Крым
Close mobile menu

Характеристики дома:

Площадь дома

204 m2

Кол-во жилых комнат

5
Стоимость проекта АР+КР
58,100 ₽

Хотите изменить планировку?

Отправьте запрос архитектору и обсудите с ним ваши идеи по перепланировке.

О проекте

S3-204 (Z324) Красивый дом классической формы с острой скатной крышей. Общие помещения на первом этаже дополнены спальными комнатами на мансарде. В результате все проживающие в доме люди могут заниматься своими делами, не мешая друг другу.
Дизайнеры остановились на заднем размещении гостиной. Комната для приема гостей и семейных посиделок имеет площадь в 40 кв. метров и выходит на крытую веранду. Рядом расположилась столовая зона. Кухня чуть отделена за счет конфигурации стен, но перегородки отсутствуют.
На первом этаже архитекторы нашли также место для большого кабинета, котельной, прихожей и ванной комнаты.
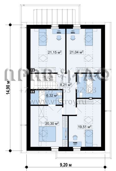
Второй уровень полностью занимают спальни. В коттедже достаточно места для семьи с тремя детьми. Владельцы коттеджа будут наслаждаться собственной изолированной ванной. В распоряжении остальных проживающих в доме имеется отдельное сантехническое помещение.

Аккредитованы в ведущих банках

Корзина
Ваша корзина пуста
Выберите в каталоге интересующий товар и нажмите кнопку "В корзину"
Отложенные товары
Отложенных товаров нет
Выберите в каталоге интересующий товар и нажмите кнопку "В избранное"
Заказать звонок