Проекты домов Оформить
ипотеку
Стройматериалы Участки Строительство
Выберите свой регион строительства
Крымский федеральный округ
Крым
Close mobile menu

Характеристики дома:

Площадь дома

183 m2

Кол-во жилых комнат

5
Стоимость проекта АР+КР
37,700 ₽

Хотите изменить планировку?

Отправьте запрос архитектору и обсудите с ним ваши идеи по перепланировке.

О проекте

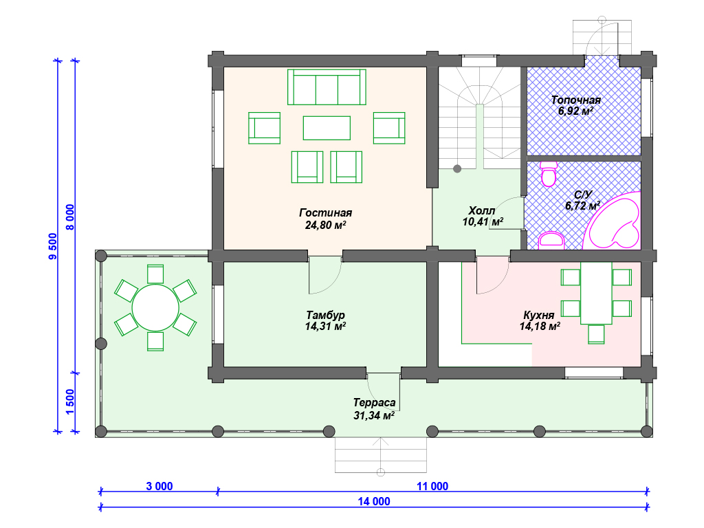
Проект деревянного дома с мансардой ДО-023.
Дом из бревна диаметром 300 мм, габаритами 9.50х14.00 м. Дом прямоугольной формы с г-образной террасой.

Предусмотрена газовая котельная, на втором этаже 4 спальни.

Аккредитованы в ведущих банках

Корзина
Ваша корзина пуста
Выберите в каталоге интересующий товар и нажмите кнопку "В корзину"
Отложенные товары
Отложенных товаров нет
Выберите в каталоге интересующий товар и нажмите кнопку "В избранное"
Заказать звонок