Проекты домов Оформить
ипотеку
Стройматериалы Участки Строительство
Выберите свой регион строительства
Крымский федеральный округ
Крым
Close mobile menu

Характеристики дома:

Площадь дома

181 m2

Кол-во жилых комнат

6+
Стоимость проекта АР+КР
37,600 ₽

Хотите изменить планировку?

Отправьте запрос архитектору и обсудите с ним ваши идеи по перепланировке.

О проекте

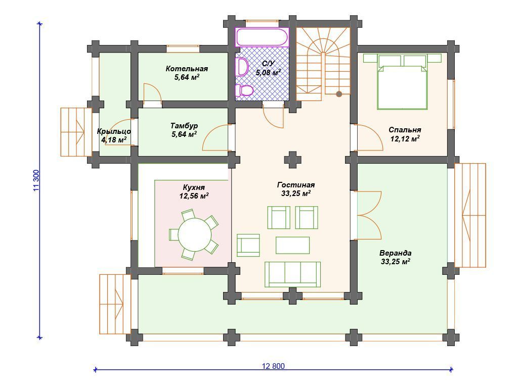
Деревянный дом прямоугольной формы, выполнен из бревна диаметром 260 мм. Конструкция крыши - двухскатная. Строительство здания осуществляется на свайно-ростверковом фундаменте. Вход в дом осуществляется с красивого крыльца накрытого двухскатной крышей.

Заходим в тамбур, в котором по левой стороне ведёт дверь в котельную. Площадь 5.64 кв м, рассчитана для отопления дома газовым оборудованием. Холла в доме нет, поэтому из тамбура попадаем сразу в цент дома, в зону гостиной 33 кв м. Отсюда открываются двери в совмещённый с/у с ванной, комнату 12 кв м и можно выйти на просторную г-образную террасу. Кухня в доме 12.56 кв м, расположена как бы отдельным помещением, но перегородки между гостиной не предусмотрено.
Лестница на второй этаж размещена очень удобно, в углу гостиной. Второй этаж мансардный из четырёх комнат и совмещённого с/у с ванной. Все комнаты не большие, одинаковой площади 12.12 кв м. Планировка дома предполагает второй свет.

Проект дома подойдёт для любителей второго света.

Аккредитованы в ведущих банках

Корзина
Ваша корзина пуста
Выберите в каталоге интересующий товар и нажмите кнопку "В корзину"
Отложенные товары
Отложенных товаров нет
Выберите в каталоге интересующий товар и нажмите кнопку "В избранное"
Заказать звонок