Проекты домов Оформить
ипотеку
Стройматериалы Участки Строительство
Выберите свой регион строительства
Крымский федеральный округ
Крым
Close mobile menu

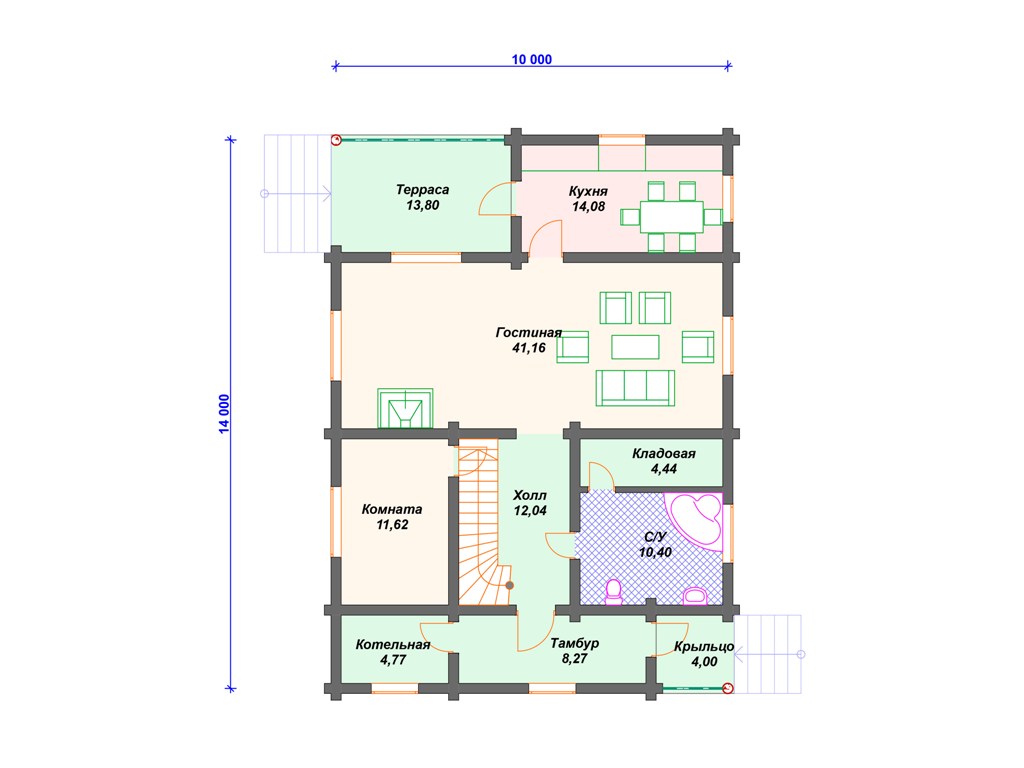
Характеристики дома:

Площадь дома

205 m2

Кол-во жилых комнат

5
Стоимость проекта АР+КР
37,600 ₽

Хотите изменить планировку?

Отправьте запрос архитектору и обсудите с ним ваши идеи по перепланировке.

О проекте

S4-187 (ДО-009) Дом из бревна диаметром 260 мм, габаритами 10х14 м.
Большой дом простой прямоугольной формы с двускатной крышей. В доме 3 спальни, большая гостиная.

Дом комфортен для проживания семьи из 4-5 человек, любящей принимать гостей.

Аккредитованы в ведущих банках

Корзина
Ваша корзина пуста
Выберите в каталоге интересующий товар и нажмите кнопку "В корзину"
Отложенные товары
Отложенных товаров нет
Выберите в каталоге интересующий товар и нажмите кнопку "В избранное"
Заказать звонок