Проекты домов Оформить
ипотеку
Стройматериалы Участки Строительство
Выберите свой регион строительства
Крымский федеральный округ
Крым
Close mobile menu

Характеристики дома:

Площадь дома

94 m2

Кол-во жилых комнат

5
Стоимость проекта АР+КР
43,300 ₽

Хотите изменить планировку?

Отправьте запрос архитектору и обсудите с ним ваши идеи по перепланировке.

О проекте

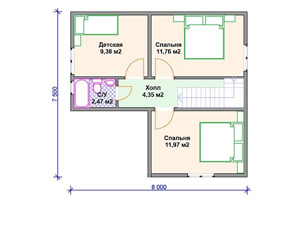
S4-94 (И-069)- дом почти квадратной формы, выполнен из деревянного каркаса толщиной 150 мм, отделка наружных стен - комбинированная. Покрытие кровли - мягкая (гибкая черепица). Входим в дом с террасы накрытой отдельной крышей от дома и попадаем в маленький холл, площадью почти 2 кв м. Сразу при входе с левой стороны ведёт дверь в с/у с ванной 2.5 кв м. Прямо кухня 9 кв м. По правой стороне холла расположена гостиная 17.6 кв м и гостевая комната. В гостиной размещён камин, а итак же лестница на второй этаж. Второй этаж спальная зона из двух спален около 12 кв м, детской комнаты 9 кв м и с/у 2.5 кв м с ванной. Проект небольшого каркасного дома для семьи из 3-4 человек.

Аккредитованы в ведущих банках

Корзина
Ваша корзина пуста
Выберите в каталоге интересующий товар и нажмите кнопку "В корзину"
Отложенные товары
Отложенных товаров нет
Выберите в каталоге интересующий товар и нажмите кнопку "В избранное"
Заказать звонок