Проекты домов Оформить
ипотеку
Стройматериалы Участки Строительство
Выберите свой регион строительства
Крымский федеральный округ
Крым
Close mobile menu

Характеристики дома:

Площадь дома

179 m2

Кол-во жилых комнат

5
Стоимость проекта АР+КР
37,700 ₽

Хотите изменить планировку?

Отправьте запрос архитектору и обсудите с ним ваши идеи по перепланировке.

О проекте

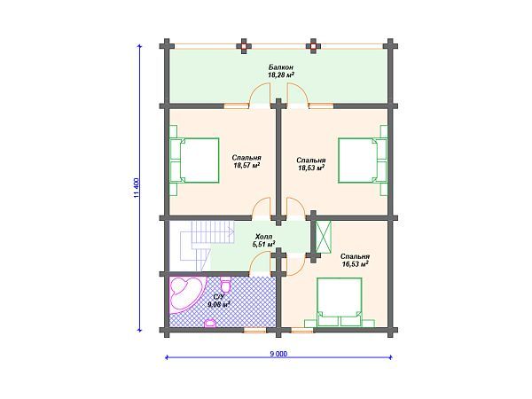
S4-179 (ДС-126). Классический двухэтажный деревянный дом со скатной крышей и террасой. Он достаточно компактный, чтобы поместиться на небольшом земельном участке. Компактные размеры и простая конструкция позволяют сэкономить на строительстве, не жертвуя комфортом членов семьи.
Заднюю часть постройки занимает кухня-гостиная. Эти два пространства отделены друг от друга только обеденным столом. Но дизайнеры установили дополнительную дверь, через которую можно попасть на крытую террасу. Эта зона расширит площадь дома в летние дни.
Также внизу расположена спальня для припозднившихся гостей и большой санузел. Еще три комнаты находятся наверху. Остальное пространство занимает санузел для общего использования.
еще один плюс — балкон, который расположен над террасой. Попасть на него могут жители двух спален на втором этаже через собственные двери.

Аккредитованы в ведущих банках

Корзина
Ваша корзина пуста
Выберите в каталоге интересующий товар и нажмите кнопку "В корзину"
Отложенные товары
Отложенных товаров нет
Выберите в каталоге интересующий товар и нажмите кнопку "В избранное"
Заказать звонок