Проекты домов Оформить
ипотеку
Стройматериалы Участки Строительство
Выберите свой регион строительства
Крымский федеральный округ
Крым
Close mobile menu

Характеристики дома:

Площадь дома

194 m2

Кол-во жилых комнат

4
Стоимость проекта АР+КР
38,000 ₽

Хотите изменить планировку?

Отправьте запрос архитектору и обсудите с ним ваши идеи по перепланировке.

О проекте

Деревянный дом прямоугольной формы, выполнен из бревна диаметром 240 мм. Конструкция крыши - простая двускатная. Строительство здания осуществляется на свайно-ростверковом фундаменте.

Вход в дом осуществляется с крыльца накрытого двускатной крышей. Заходим в тамбур 6 кв м, в котором есть возможность разместить шкаф-купе для верхней одежды. Ещё одно преимущество тамбура состоит в том, что при его наличии значительная доля уличной грязи не заносится непосредственно в дом. При выходе из тамбура мы попадаем в просторный холл г-образной формы почти 25 кв м, в котором расположена лестница на второй этаж. Первый этаж используется в качестве дневной зоны: просторная, уютная и светлая кухня-столовая, площадью 42 кв м, гостиная 15 кв м и ванная комната 5 кв м.
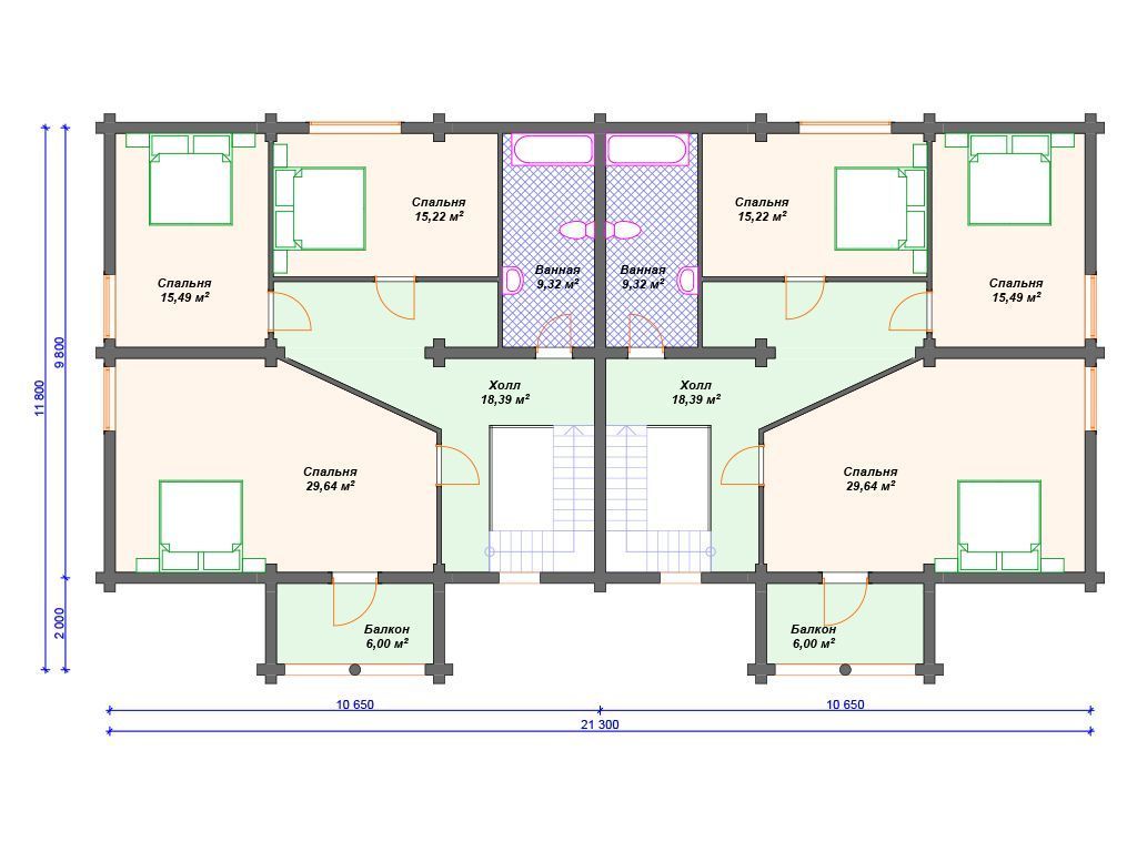
Второй этаж включает в себя три спальни: две детские 15 кв м и родительская 29.6 кв м с выходом на балкон, на главный фасад дома. Так же на этаже предусмотрена ванная комната, комфортной площади 9 кв м.

Отличный проект дома на две семьи с рациональным распределение жилой площади.

Аккредитованы в ведущих банках

Корзина
Ваша корзина пуста
Выберите в каталоге интересующий товар и нажмите кнопку "В корзину"
Отложенные товары
Отложенных товаров нет
Выберите в каталоге интересующий товар и нажмите кнопку "В избранное"
Заказать звонок