Проекты домов Оформить
ипотеку
Стройматериалы Участки Строительство
Выберите свой регион строительства
Крымский федеральный округ
Крым
Close mobile menu

Характеристики дома:

Площадь дома

174 m2

Кол-во жилых комнат

5
Стоимость проекта АР+КР
58,100 ₽

Хотите изменить планировку?

Отправьте запрос архитектору и обсудите с ним ваши идеи по перепланировке.

О проекте

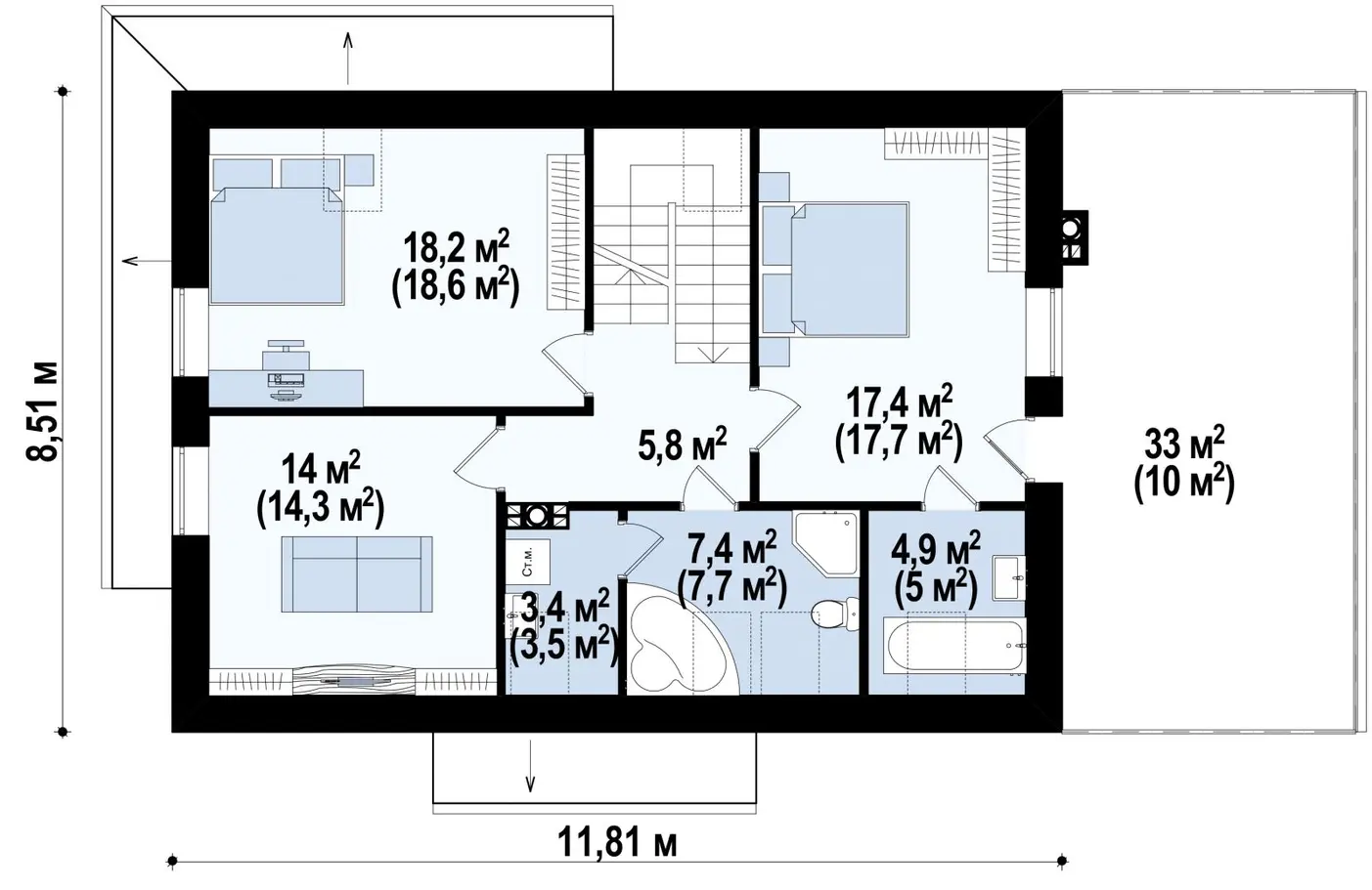
S3-174-1 (Z244 GP) Если застройщик подбирает дом для постоянного проживания, он часто отдает предпочтение просторным спальням. При этом площадь гостиной и кухни отходит на второй план. 

При выборе этого проекта дружная семья получит аккуратный и просторный дом, в котором не нужно прибегать к компромиссам. Жилое пространство в нем разделено на четыре спальни. Три из них расположены на мансарде, одна — внизу. Благодаря большим размерам этих помещений все члены семьи будут чувствовать себя комфортно. 

Дневная зона коттеджа представлена гостиной и кухней. Между ними нет перегородки. Место для приготовления пищи находится в частично отгороженном пространстве и имеет дополнительный вход через кладовую. Поэтому место для отдыха можно полностью перепланировать, чтобы приготовление пищи не доставляло дискомфорта отдыхающим у камина гостям. 

Нельзя обойти вниманием наличие индивидуального санузла в комнате владельцев, а также выход из их спальни на террасу, находящуюся на крыше гаража под одну машину. 

Аккредитованы в ведущих банках

Корзина
Ваша корзина пуста
Выберите в каталоге интересующий товар и нажмите кнопку "В корзину"
Отложенные товары
Отложенных товаров нет
Выберите в каталоге интересующий товар и нажмите кнопку "В избранное"
Заказать звонок