Проекты домов Оформить
ипотеку
Стройматериалы Участки Строительство
Выберите свой регион строительства
Крымский федеральный округ
Крым
Close mobile menu

Характеристики дома:

Площадь дома

175 m2

Кол-во жилых комнат

5
Стоимость проекта АР+КР
45,500 ₽

Хотите изменить планировку?

Отправьте запрос архитектору и обсудите с ним ваши идеи по перепланировке.

О проекте

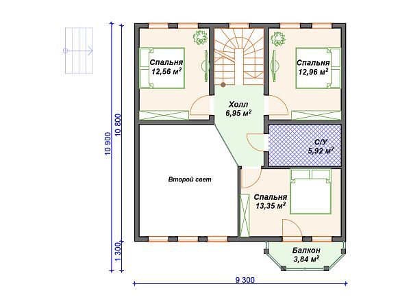
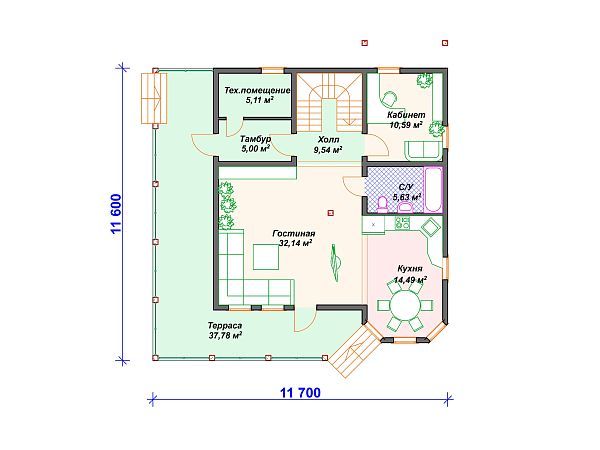
S4-175 (И-007)- дом квадратной формы, выполнен из деревянного каркаса толщиной 150 мм, отделка наружных стен - фасадная плитка. Вход в дом осуществляется с г-образной террасы, площадью 38.5 кв м. Так же с террасы предусмотрен вход в дом через гостиную. Этим входом удобно пользоваться в летнее время года. Заходим в дом через тамбур, в котором по левую руку вход к отельную 5 кв м. Из тамбура попадаем в холл почти 9 кв м. Первый этаж занимают: кабинет около 13 кв м, с/у с душевой кабиной 5.9 кв м и гостиная 27 кв м с кухней 13 кв м. Кухня расположена в эркере, благодаря которому кухня превращается в уютную столовую зону. Поднимаемся на второй этаж по лестнице с забежными ступенями и попадаем в холл 6.9 кв м. Пройдя прямо через холл попадаем в зону второго света, выходящего над зоной гостиной. На этаже три небольшие по площади спальни - 12.5 кв м, 12.9 кв м и 13 кв м (с выходом на балкон). Отличный проект каркасного дома, в котором есть всё - ничего лишнего, подойдёт для круглогодичного проживания семьи из 4 человек.

Аккредитованы в ведущих банках

Корзина
Ваша корзина пуста
Выберите в каталоге интересующий товар и нажмите кнопку "В корзину"
Отложенные товары
Отложенных товаров нет
Выберите в каталоге интересующий товар и нажмите кнопку "В избранное"
Заказать звонок