Проекты домов Оформить
ипотеку
Стройматериалы Участки Строительство
Выберите свой регион строительства
Крымский федеральный округ
Крым
Close mobile menu

Характеристики дома:

Площадь дома

136 m2

Кол-во жилых комнат

2
Стоимость проекта АР+КР
42,900 ₽

Хотите изменить планировку?

Отправьте запрос архитектору и обсудите с ним ваши идеи по перепланировке.

О проекте

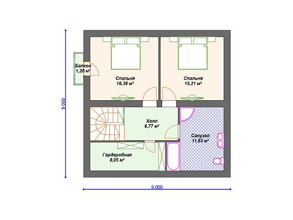
S4-136 (К-026)  Дом общей площадью 136 кв м. Габариты дома (без террасы) - 9.00х9.00 м. Дом квадратной формы, выполнен из газобетона, толщиной 400 мм с облицовкой штукатуркой. Перегородки в доме выполнены из деревянного каркаса. Строительство здания осуществляется на монолитной плите. Перекрытия 1эт - по плите, 2эт - деревянные лаги. Покрытие кровли - металлочерепица. Дом двухэтажный, второй этаж - мансардный. Конструкция крыши у дома - сложная, четырехскатная шатровая с мансардными окнами. Дом оригинален своей архитектурой тем, что крыша является стенами второго этажа, а обычные окна заменены мансардными окнами в крыше. Вход в дом осуществляется с г-образной террасы, выполняющей функцию крыльца. Заходим и попадаем в тамбур, в котором можно снять верхнюю одежду, а гардеробная расположена в холле при выходе из тамбура под вторым маршем лестницы - такой шаг позволяет использовать все пространство рационально. Из холла также можно попасть в санузел (4,5 кв м) и котельную, рассчитанную под газовое отопление дома. Кухня и гостиная в доме объединены общим помещением в 32,5 кв м. С правой стороны расположена кухонная зона, т.к. все коммуникации удобно вести по одной стороне дома, а с левой стороны - гостиная. Поднимаемся на второй этаж по п-образной лестнице с забежными ступенями и попадаем в достаточно просторный холл. На втором этаже расположены 2 спальни по 15 и 16 кв м, санузел (почти 12 кв м) и гардеробная. Несмотря на достаточно большие площади помещений необходимо учитывать, что этаж мансардный, поэтому высота стен на 2 этаже очень маленькая, т.е. используемой площади будет немного меньше. Дома подойдет для постоянного проживания семьи из 3-4 человек.

Аккредитованы в ведущих банках

Корзина
Ваша корзина пуста
Выберите в каталоге интересующий товар и нажмите кнопку "В корзину"
Отложенные товары
Отложенных товаров нет
Выберите в каталоге интересующий товар и нажмите кнопку "В избранное"
Заказать звонок