Проекты домов Оформить
ипотеку
Стройматериалы Участки Строительство
Выберите свой регион строительства
Крымский федеральный округ
Крым
Close mobile menu

Характеристики дома:

Площадь дома

108 m2

Кол-во жилых комнат

3
Стоимость проекта АР+КР
41,900 ₽

Хотите изменить планировку?

Отправьте запрос архитектору и обсудите с ним ваши идеи по перепланировке.

О проекте

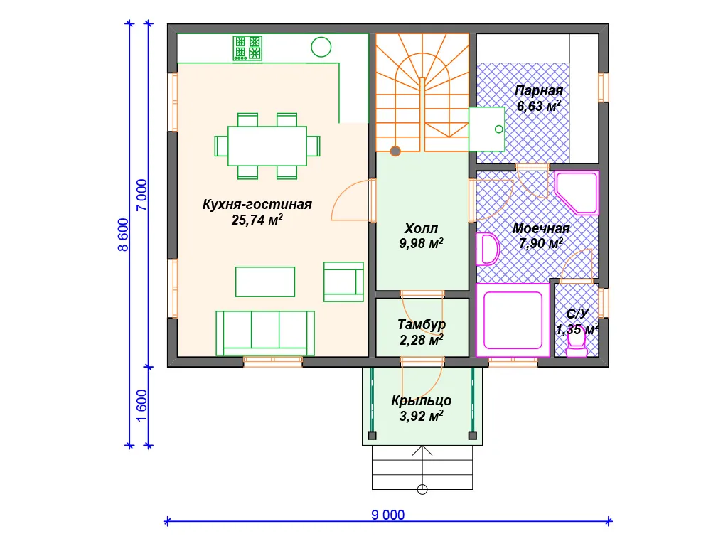
S4-108 (И-048) - дом прямоугольной формы, выполнен из деревянного каркаса толщиной 150 мм. Отделка наружных стен - сайдинг. Строительство здания осуществляется на винтовых сваях. Заходим в дом с крыльца накрытого двухскатной крышей и проходим в небольшой тамбур 2 кв м. Далее проходим в холл который расположен по центру дома и отсюда имеется возможность пройти во все помещения этажа. Левую половину дома занимает кухня-гостиная, площадью 25.7 кв м. Правая сторона "мокрая зона" - парная 6.6 кв м, моечная почти 8 кв м и маленький с/у. В конце холла на заднем фасаде дома расположена лестница на второй этаж. Верхний этаж обустроен очень компактно, там находятся две спальни (16.5 кв м и 25.7 кв м)и с/у 4 кв м с душевой кабиной. Компактный, недорогой дом в строительстве, но позволяющий расположить для проживания семью из 3 человек.

Аккредитованы в ведущих банках

Корзина
Ваша корзина пуста
Выберите в каталоге интересующий товар и нажмите кнопку "В корзину"
Отложенные товары
Отложенных товаров нет
Выберите в каталоге интересующий товар и нажмите кнопку "В избранное"
Заказать звонок