Проекты домов Оформить
ипотеку
Стройматериалы Участки Строительство
Выберите свой регион строительства
Крымский федеральный округ
Крым
Close mobile menu

Характеристики дома:

Площадь дома

194 m2

Кол-во жилых комнат

6+
Стоимость проекта АР+КР
43,600 ₽

Хотите изменить планировку?

Отправьте запрос архитектору и обсудите с ним ваши идеи по перепланировке.

О проекте

S4-194 (А-023). Двухуровневый коттедж из комбинированных материалов имеет форму вытянутого прямоугольника и подойдет для строительства на узком участке. Все помещения в нем спланированы вокруг вытянутого холла и разделены по двум уровням, чтобы обеспечить нужный комфорт всем проживающим в нем людям.
Одно крыло постройки занимает гостиная, которая плавно перетекает в столовую. Между этими комнатами перегородка присутствует лишь частично, однако при необходимости пространство можно зонировать сдвижной системой или постоянной стеной.
Кухня находится в отдельной комнате со входом в столовую и дверью в коридор. Такое дизайнерское решение упрощает сервировку обедов и ужинов, а также облегчает загрузку продуктов.
На первом уровне есть дополнительная спальня, которая может стать удобным домашним офисом. Через коридор от нее находится дневной санузел и котельная.
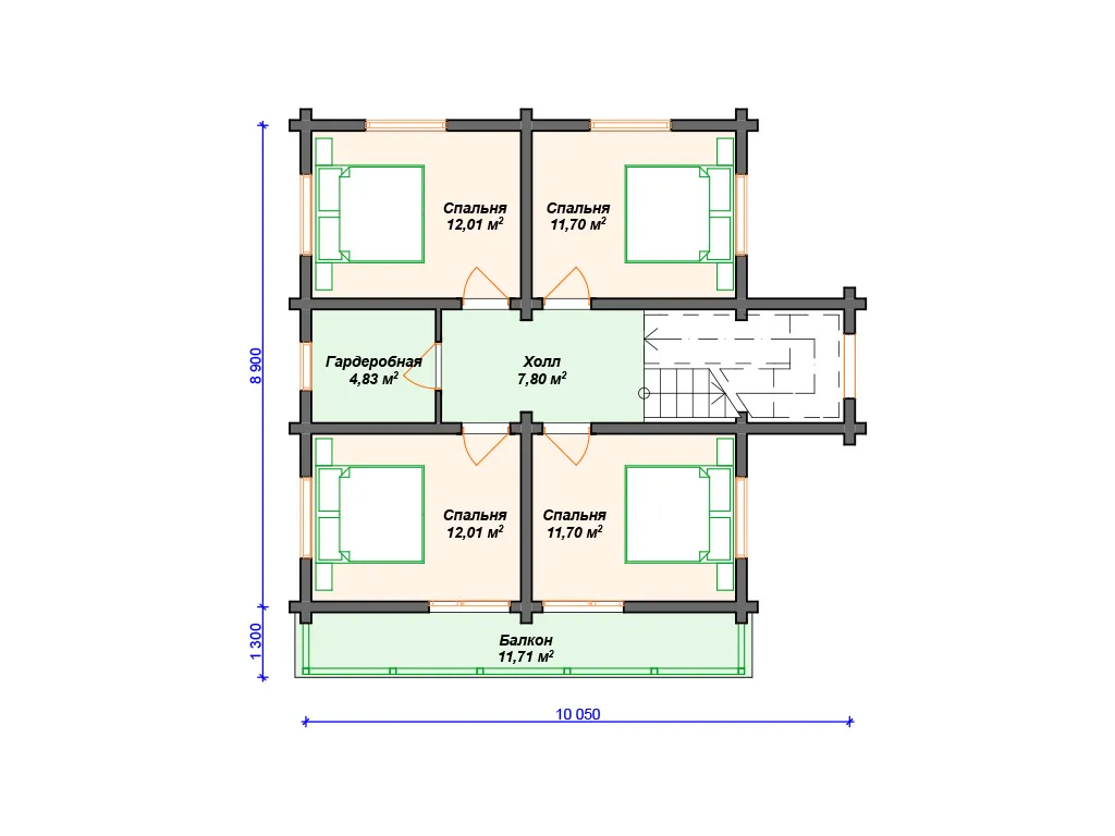
Второй этаж занимают четыре одинаковые по площади спальни и гардеробная. В двух комнатах предусмотрен выход на балкон.

Аккредитованы в ведущих банках

Корзина
Ваша корзина пуста
Выберите в каталоге интересующий товар и нажмите кнопку "В корзину"
Отложенные товары
Отложенных товаров нет
Выберите в каталоге интересующий товар и нажмите кнопку "В избранное"
Заказать звонок