info@vfstroy.ru
Москва, 1-й Кожевнический переулок, дом 6, строение 1, этаж 3
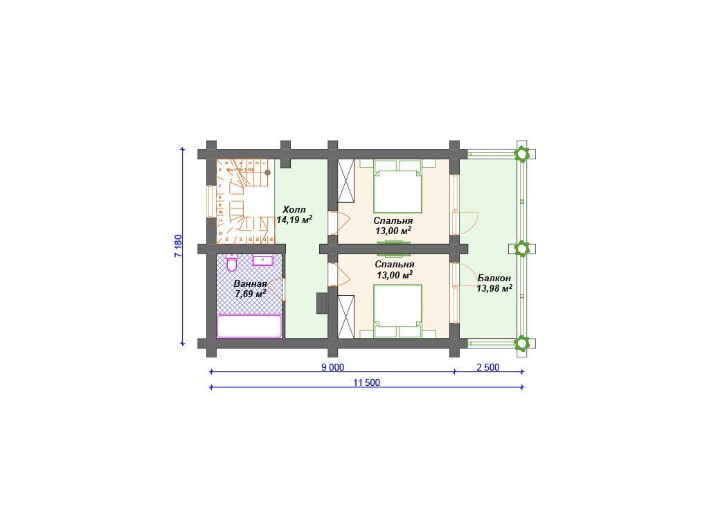
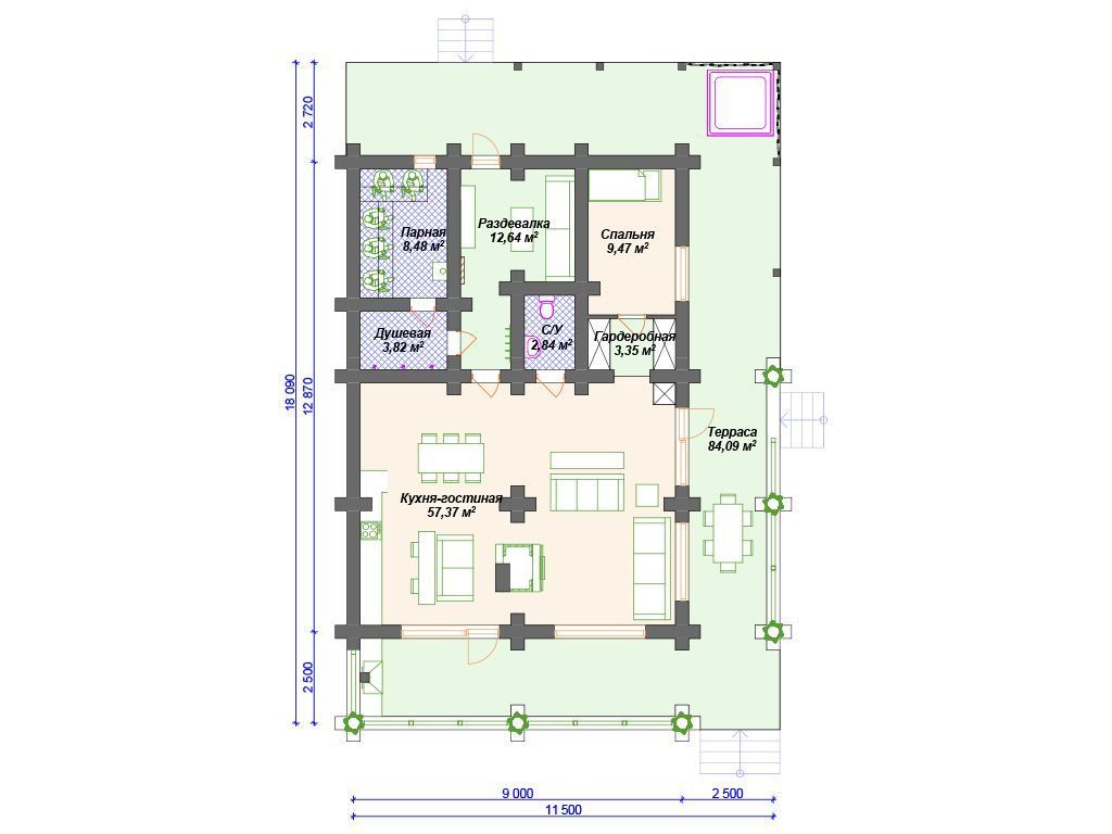
Проект деревянного дома из бревна 9 на 13 м с 3 спальнями и сауной S4-146 (ДО-134)
Характеристики дома:
Площадь дома
146 m2
Кол-во жилых комнат
4
Стоимость проекта АР+КР
37,300 ₽
О проекте
Характеристики проекта S4-146 (ДО-134)
| Классификация архитектора | ДО-134 |
| Общая площадь | 146 м2 |
| Количество этажей | двухэтажный |
| Возможный материал кровли | металлочерепица, гибкая черепица, керамическая черепица, композитная черепица, цементно-песчаная черепица, фальцевая кровля |
| Количество жилых комнат | 4 |
| Тип перекрытий | по деревянным балкам |
| Материал стен | оцилиндрованное бревно, профилированный брус, клееный брус |