Проекты домов Оформить
ипотеку
Стройматериалы Участки Строительство
Выберите свой регион строительства
Крымский федеральный округ
Крым
Close mobile menu

Характеристики дома:

Площадь дома

117 m2

Кол-во жилых комнат

5
Стоимость проекта АР+КР
52,000 ₽

Хотите изменить планировку?

Отправьте запрос архитектору и обсудите с ним ваши идеи по перепланировке.

О проекте

S3-117-1 (Z75) - Этот компактный коттедж с мансардой подойдет и для постоянного проживания, и для загородного отдыха на лоне природы. Небольшая по размеру постройка поместится даже на самом маленьком дачном участке. Но внутри она вместит большую семью. 
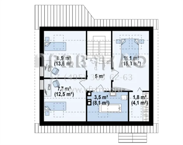
Главная особенность этого проекта — жилая комната на первом уровне, которая дополняет три спальни на мансарде. Дневная зона представлена просторной гостиной, в которой размещена также кухонная стенка. Зоны отделены друг от друга настоящим камином и барной стойкой. Не забыт и санузел внизу, которым удобно пользоваться, не поднимаясь на второй этаж. 
Оригинальным решением проектировщиков является кухонная кладовая, куда можно попасть и из прихожей дома. Дополнительным местом для хранения послужит чулан под лестницей. 
Для ночного использования предназначена одна ванная комната на мансарде. Несмотря на ограниченную внутреннюю площадь, архитекторам удалось вместить наверху даже отдельное гардеробное помещение. 

Аккредитованы в ведущих банках

Корзина
Ваша корзина пуста
Выберите в каталоге интересующий товар и нажмите кнопку "В корзину"
Отложенные товары
Отложенных товаров нет
Выберите в каталоге интересующий товар и нажмите кнопку "В избранное"
Заказать звонок