Проекты домов Оформить
ипотеку
Стройматериалы Участки Строительство
Выберите свой регион строительства
Крымский федеральный округ
Крым
Close mobile menu

Характеристики дома:

Площадь дома

108 m2

Кол-во жилых комнат

3
Стоимость проекта АР+КР
42,300 ₽

Хотите изменить планировку?

Отправьте запрос архитектору и обсудите с ним ваши идеи по перепланировке.

О проекте

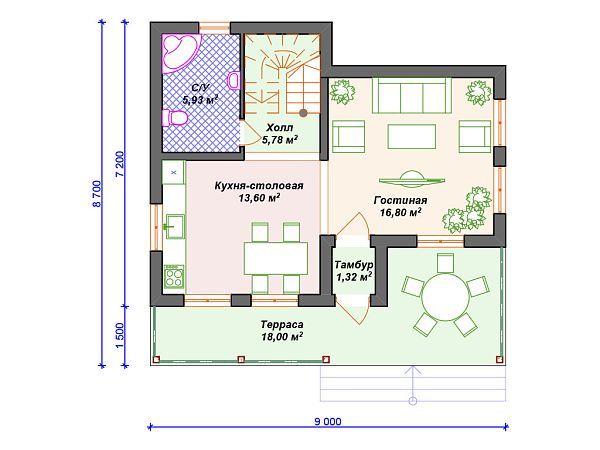
S4-108 (К-295) Двухэтажный мансардный дом общей площадью - 108 кв м. Дом квадратной формы, выполнен из блоков, с отделкой наружных стен - фасадная плитка. Строительство здания осуществляется на свайно-ростверковом фундаменте. Входим в дом с террасы, площадью 18 кв м и попадаем в маленький тамбур. Далее попадаем в основную часть дома - сразу в гостиную зону 16.8 кв м, прихожей в доме нет (оно и не удивительно, дом небольшой, места для "лишних" помещений практически нет). Из гостиной через проём в стене проходим в кухню-столовую, площадью 13.6 кв м. Из кухни предусмотрен вход в небольшой холл, в котором размещена лестница на второй этаж и санузел почти 6 кв м с душевой кабиной. Верхний этаж обустроен очень компактно, там находятся две спальни 13.6 кв м и 16.8 кв и с/у около 6 кв м с душевой кабиной. В спальне большей площади предусмотрен выход на балкон. Санузлы в доме расположенные один над другим облегчат установку водопровода и канализации в доме. Этот проект дома хорошо подойдет для замены, например, двухкомнатной квартиры.

Аккредитованы в ведущих банках

Корзина
Ваша корзина пуста
Выберите в каталоге интересующий товар и нажмите кнопку "В корзину"
Отложенные товары
Отложенных товаров нет
Выберите в каталоге интересующий товар и нажмите кнопку "В избранное"
Заказать звонок