Проекты домов Оформить
ипотеку
Стройматериалы Участки Строительство
Выберите свой регион строительства
Крымский федеральный округ
Крым
Close mobile menu

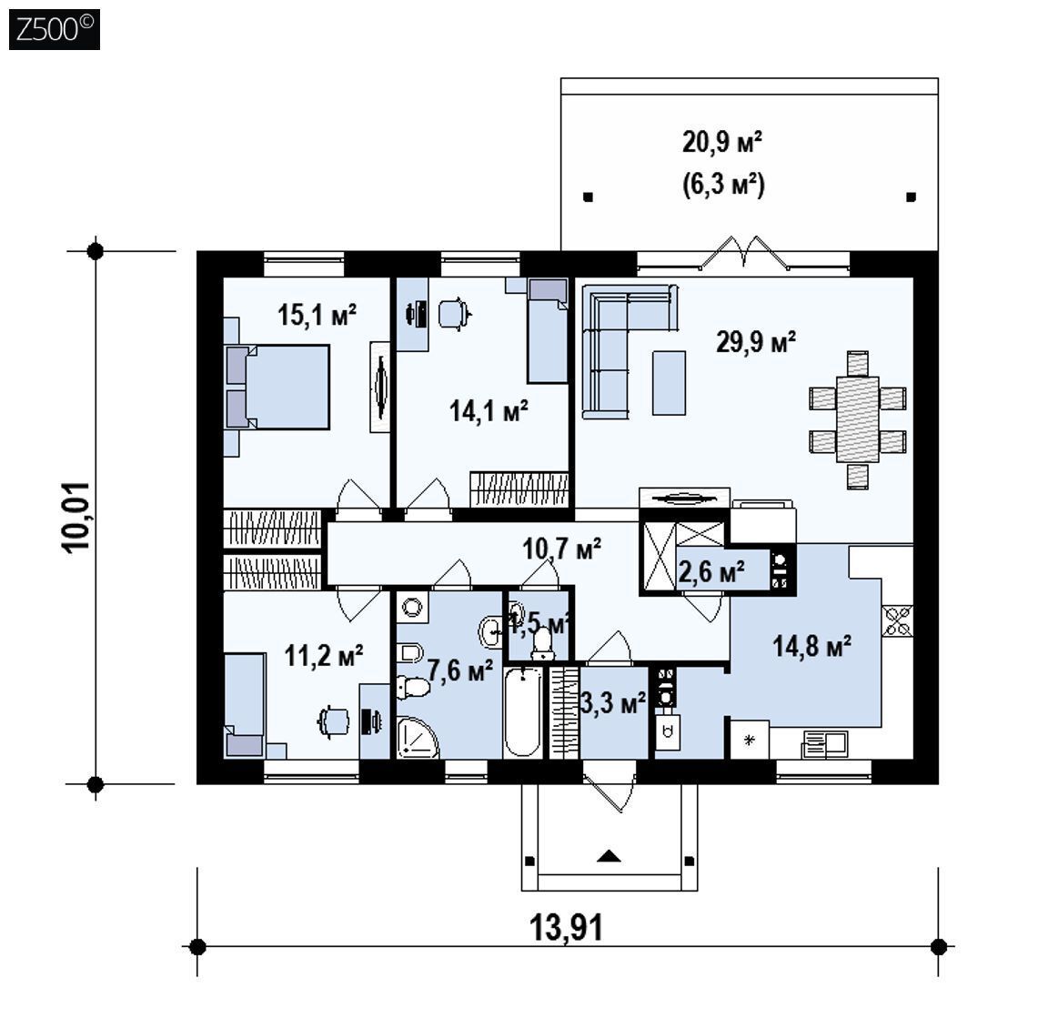
Характеристики дома:

Площадь дома

111 m2

Кол-во жилых комнат

5
Стоимость проекта АР+КР
52,000 ₽

Хотите изменить планировку?

Отправьте запрос архитектору и обсудите с ним ваши идеи по перепланировке.

О проекте

S3-111 (Z91 v1) Дом представляет собой одноэтажное строение с двускатной крышей, отличающееся простотой и экономичностью в реализации. Классический входной навес, supported двумя столбами, добавляет ему очарования.
Зоны дома
Данный дом делится на две основные зоны: дневную и спальную, что обеспечивает удобство и функциональность. В дневной зоне расположены гостиная, совмещенная с кухней, рядом с которой находятся котельная и отдельно расположенное подсобное помещение. Гостиная связана с кухней большими стеклянными дверями, ведущими на террасу, что позволяет наслаждаться отдыхом на свежем воздухе и принимать гостей на открытом пространстве.
Спальная зона
В доме предусмотрено три просторные спальни, идеально подходящие для большой семьи или для приема гостей. Также имеются ванная комната и отдельный туалет, что обеспечивает комфорт для всех членов семьи.
Планировка и функциональность
Помещения спланированы таким образом, чтобы обеспечить удобное сообщение между ними. Можно легко организовать просторные шкафы для поддержания порядка. Планировка минимизирует количество коридоров, что позволяет экономить пространство и делает дом более удобным в повседневном использовании.
Экономичность
Благодаря простой конструкции, дом выгоден в строительстве. Одноэтажное строение с двускатной крышей легко возводить и относительно недорого, что снижает затраты на материалы и рабочую силу. Двускатная форма крыши также облегчает обслуживание и ремонт.
Энергоэффективность
Компактные размеры и рациональное планирование позволяют снизить расходы на отопление и охлаждение, что делает дом экономически выгодным в долгосрочной перспективе.
Стиль и эстетика
Этот дом идеален для тех, кто ищет небольшой традиционный вариант, который сочетает функциональность, простоту и эстетику. Его современный и стильный внешний вид с чистыми линиями и минималистическим подходом придает ему элегантность. Нейтральные цвета и аккуратные архитектурные детали создают атмосферу современности, а классический навес придает ощущение гостеприимства и традиционного шарма.
Универсальность
Дизайн дома таков, что он гармонично вписывается в любое окружение: как в пригородной, так и в городской среде. Это делает его универсальным и привлекательным для различных типов застройки.

Дизайн интерьера

Понравился этот дом?

Отправьте нам сообщение, и мы ответим на все интересующие вас вопросы.

Аккредитованы в ведущих банках

Корзина
Ваша корзина пуста
Выберите в каталоге интересующий товар и нажмите кнопку "В корзину"
Отложенные товары
Отложенных товаров нет
Выберите в каталоге интересующий товар и нажмите кнопку "В избранное"
Заказать звонок