Проекты домов Оформить
ипотеку
Стройматериалы Участки Строительство
Выберите свой регион строительства
Крымский федеральный округ
Крым
Close mobile menu

Характеристики дома:

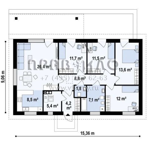
Площадь дома

111 m2

Кол-во жилых комнат

5
Стоимость проекта АР+КР
58,100 ₽

Хотите изменить планировку?

Отправьте запрос архитектору и обсудите с ним ваши идеи по перепланировке.

О проекте

S3-111 (Z376)-этот одноэтажный дом выполнен в классическом архитектурном стиле и привлекает своей отделкой фасадов с использованием натурального дерева. Такой дом идеально подойдет для проживания семьи из 5 человек.
Так как все помещения дома расположены на единственном этаже, пожилым членам семьи и детям будет проще до них добираться. Дневная зона дома представлена просторной гостиной, совмещенной в одном пространстве с кухней и столовой. Камин, спроектированный в этой комнате, будет согревать Вас и Вашу семью холодными вечерами. Несомненным преимуществом данного проекта является наличие крытой террасы, попасть на которую можно через панорамные окна-двери гостиной.
Ночная зона дома довольно обширна – здесь расположились четыре спальные комнаты, один санузел и одна полноценная ванная комната. При этом большим плюсом является наличие выхода на террасу из трех комнат. Одну из четырех комнат, по Вашему желанию, можно переоборудовать, например, в кабинет.

Аккредитованы в ведущих банках

Корзина
Ваша корзина пуста
Выберите в каталоге интересующий товар и нажмите кнопку "В корзину"
Отложенные товары
Отложенных товаров нет
Выберите в каталоге интересующий товар и нажмите кнопку "В избранное"
Заказать звонок