Проекты домов Оформить
ипотеку
Стройматериалы Участки Строительство
Выберите свой регион строительства
Крымский федеральный округ
Крым
Close mobile menu

Характеристики дома:

Площадь дома

252 m2

Кол-во жилых комнат

6+
Стоимость проекта АР+КР
77,400 ₽

Хотите изменить планировку?

Отправьте запрос архитектору и обсудите с ним ваши идеи по перепланировке.

О проекте

S3-252-4(zx109 v2) - Этот проект обязательно понравится любителям строгих форм в архитектуре. Внешне привлекает необычным оформлением. В экстерьере использовали современные материалы. Например, фасад облицевали диким камнем, входную зону и часть второго этажа оформили плоским декоративным кирпичом. На подъезде к дому уложили плитку и бордюрный камень.
Первый этаж разделили на дневную и ночную зону. Есть два кабинета, комната отдыха, сауна. Просторная гостиная объединена с кухней небольшой перегородкой.
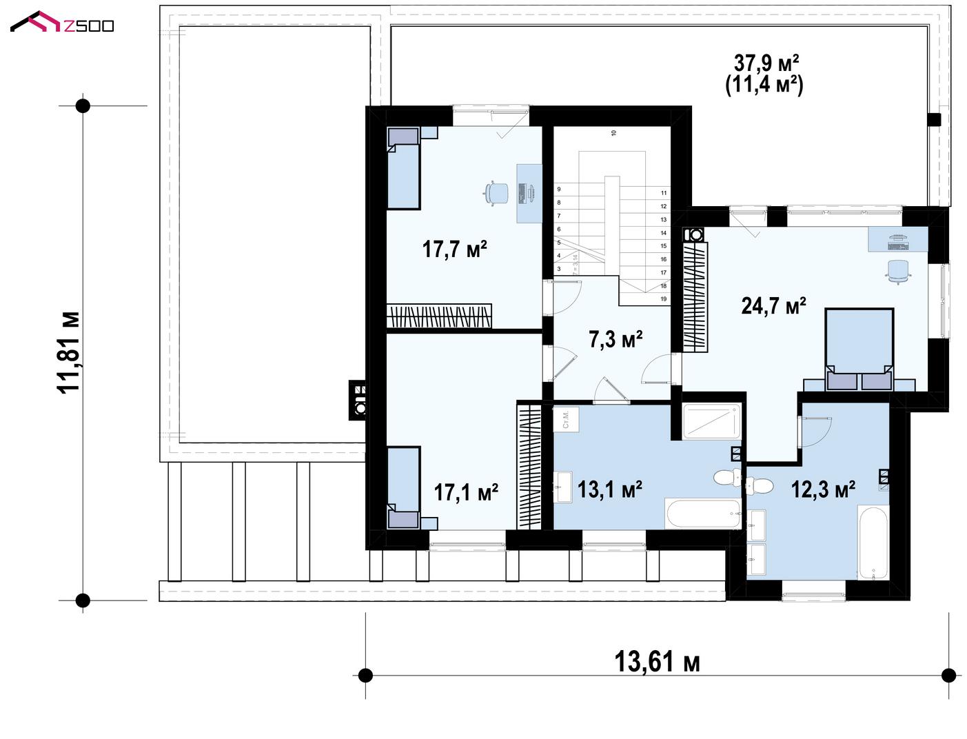
На втором этаже расположилась мастер-спальня, две ванные комнаты и два рабочих кабинета. Из спальни и кабинета можно попасть на открытый балкон.
На заднем дворе имеется большая терраса, примыкающая к дому сразу с двух сторон. Таким образом, в одной части можно загорать на солнце, а в другой — любоваться на сад.
Проект предусмотрен для тех, кто обладает большими участками, которые позволят насладиться окружающей природой.

Аккредитованы в ведущих банках

Корзина
Ваша корзина пуста
Выберите в каталоге интересующий товар и нажмите кнопку "В корзину"
Отложенные товары
Отложенных товаров нет
Выберите в каталоге интересующий товар и нажмите кнопку "В избранное"
Заказать звонок