Проекты домов Оформить
ипотеку
Стройматериалы Участки Строительство
Выберите свой регион строительства
Крымский федеральный округ
Крым
Close mobile menu

Характеристики дома:

Площадь дома

206 m2

Кол-во жилых комнат

6+
Стоимость проекта АР+КР
88,300 ₽

Хотите изменить планировку?

Отправьте запрос архитектору и обсудите с ним ваши идеи по перепланировке.

О проекте

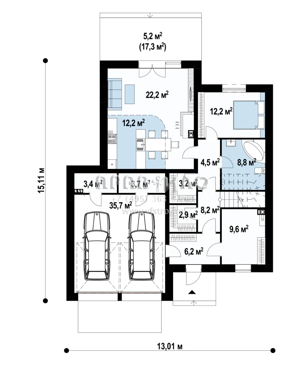
S3-206-6 (ZX120) Это современный дом, который выделяется не только своей необычной формой. Коттедж имеет два уровня и большую площадь, поэтому недостатка в жилых и технических помещениях здесь не будет.
Проект разработан таким образом, чтобы в жилище вместе проживали две семьи. Для каждой из них предусмотрено место в гараже с отдельной кладовой, несколько спален и гостиная с кухонной зоной.

Разделение сделано с помощью этажей. Оригинальные планировочные решения позволяют входить и выходить из дома, не создавая дискомфорта для других.
Одна семья получает в свое распоряжение одну спальню, а вторая — целых три. Такой подход станет отличным решением в случае, когда под одной крышей проживает несколько поколений родственников.

Дополнительная оригинальная деталь — огромная терраса, расположенная над гаражом. Попасть на нее можно из гостиной второго этажа.

Аккредитованы в ведущих банках

Корзина
Ваша корзина пуста
Выберите в каталоге интересующий товар и нажмите кнопку "В корзину"
Отложенные товары
Отложенных товаров нет
Выберите в каталоге интересующий товар и нажмите кнопку "В избранное"
Заказать звонок